АХО
Цена коробки:
7583483 р.
Цена проекта:
75800 р.
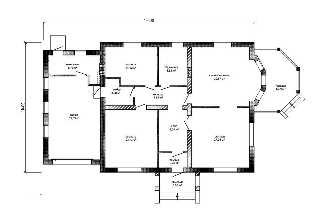
Общая площадь:
191 м2
Размеры дома:
11,4 х 18,5 м
Этажей:
1
Гараж:
Срок строительства:
дней
- Комплектация
- Планировка
- Ход строительства
«Ахо»
Используемые материалы

Проект представляет собой комплект чертежей формата А4, которые удобно распечатать. Он включает в себя строительный и архитектурный разделы, необходимые для получения разрешения на строительство и качественного возведения "коробки" дома самостоятельно или с привлечением сторонних подрядчиков. В стоимость проекта входит инженерная поддержка. По запросу Вам будет предоставлен специальный номер телефона и адрес электронной почты для прямой связи с инженером - разработчиком проекта. По ним Вы сможете задавать вопросы и консультироваться во время строительства. Примеры проектов.
Скачать пример проекта (3,1 МБ, pdf)
Состав помещений
| 1 этаж | крыльцо, два тамбура, холл, коридор, с/у-ванная, кухня-столовая, гостиная, две комнаты, терраса, котельная, гараж |
Используемые материалы
| Фундамент | ленточный монолитный железобетонный на буронабивных сваях | |
| Стены цоколя | рядовая кирпичная кладка с армированием под отделку камнем | |
| Стены наружные | газобетонные блоки D500 400 мм. на клею под дальнейшую отделку | |
| Стены внутренние | из красного рядового кирпича 380 мм. | |
| Перекрытия | по деревянным балкам | |
| Полы 1 этажа | наливные слоеные по индивидуальному заказу | |
| Крыша | холодный чердак | |
| Кровля | гибкая черепица |

Проект представляет собой комплект чертежей формата А4, которые удобно распечатать. Он включает в себя строительный и архитектурный разделы, необходимые для получения разрешения на строительство и качественного возведения "коробки" дома самостоятельно или с привлечением сторонних подрядчиков. В стоимость проекта входит инженерная поддержка. По запросу Вам будет предоставлен специальный номер телефона и адрес электронной почты для прямой связи с инженером - разработчиком проекта. По ним Вы сможете задавать вопросы и консультироваться во время строительства. Примеры проектов.
Скачать пример проекта (3,1 МБ, pdf)
Состав проекта «Ахо» (ведомость чертежей), лист, наименование
- Ведомость чертежей
- Общие данные
- Планировка дома
- Разрез по высотам
- Фасад спереди
- Фасад справа
- Фасад слева
- Фасад сзади
- План фундамента (ростверк)
- Ростверк по эркеру и террасе
- Сечение по ростверку и свае
- Узлы армирования фундамента
- Свайное поле
- План кладки цоколя
- Цоколь по эркеру и террасе
- Кладочный план этажа дома
- План раскладки перемычек
- Ведомость перемычек
- Армирование стен из газобетонного блока
- План раскладки балок перекрытия по гаражу и крыльцу
- Кладочный вид спереди
- Кладочный вид справа
- Кладочный вид слева
- Кладочный вид сзади
- Кладочный разрез 1-1
- Кладочный разрез 2-2
- Кладочные узлы 1 и 2
- Кладочный план вентиляционных и дымовых каналов
- План кровли
- Раскладка мауэрлата
- Раскладка опорных балок по дому
- Сборная балка 1
- Сборная балка 2
- Сборная балка 3
- Раскладка лежней и столбов
- Раскладка диагональных стропил
- Раскладка стропильной части по дому
- Раскладка опорных балок гаража
- Раскладка стропил гаража
- Разрез по кровле Кр.1-Кр.1
- Разрез по кровле Кр.2-Кр.2
- Разрез по кровле Кр.3-Кр.3
- Полная калькуляция работ и материалов в текущих ценах (примерно 5 листов)




