БАВАРИЯ банный комплекс
Цена коробки:
5580052 р.
Цена проекта:
55800 р.
Общая площадь:
124 м2
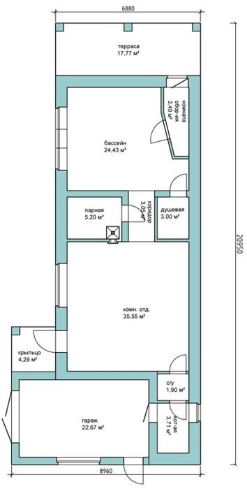
Размеры дома:
6,88 х 20,095 м
Этажей:
1
Гараж:
Срок строительства:
дней
- Комплектация
- Планировка
- Ход строительства
БАВАРИЯ банный комплекс
Состав помещений
| 1 этаж | входная группа, гараж на один автомобиль, котельная, с/у, комната отдыха, парная, бассейн, душевая, коридор, терраса, комната оборудования | |
| 2 этаж | чердачные помещения |
Используемые материалы
| Фундамент | ленточный монолитный железобетонный на буронабивных сваях | |
| Стены цоколя | рядовая кирпичная кладка с армированием | |
| Стены наружные | газобетонные блоки, 400 мм., облицовка облицовочным кирпичом "баварская" кладка | |
| Фасад | стены комплекса отделаны облицовочным кирпичом кладка-"Баварская". Цоколь из красного кирпича, рядового под отделку декоративным камнем | |
| Стены внутренние | газобетонные блоки, 300 - 400 мм. | |
| Перекрытия | по деревянным балкам | |
| Крыша | чердачная | |
| Кровля | гибкая черепица |
Состав проекта (ведомость чертежей), лист, наименование
- Ведомость чертежей
- Общие данные
- Фасад спереди
- Фасад справа
- Фасад слева
- Фасад сзади
- Планировка 1 этажа
- Ориентировочная планировка банного комплекса с размерами
- Разрез 1-1
- Разрез 2-2
- Разрез 3-3
- План фундамента (ростверк)
- План фундамента (сваи)
- Узлы и сечения по фундаменту 1
- Узлы и сечения по фундаменту 2
- План кладки цоколя
- Кладочный план 1 этажа
- План балок перекрытия 1 этажа
- Кладочный вид спереди
- Кладочный вид справа
- Кладочный вид слева
- Кладочный вид сзади
- План расположения подстропильных балок и ферм
- Ферма металлическая Ф1
- План расположения мауэрлатов
- План стропильной части
- План кровли
- Детали кровли, основная кровля
- Детали кровли, гараж (слева)
- Пример кладки
- Полная калькуляция работ и материалов в текущих ценах (примерно 5 листов)




