БРУСКОВЫЙ
Цена коробки:
3016311 р.
Цена проекта:
30200 р.
Общая площадь:
95 м2
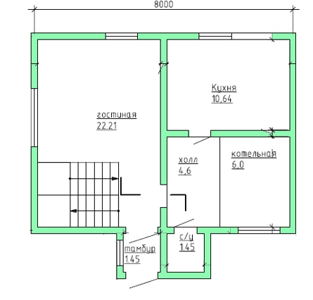
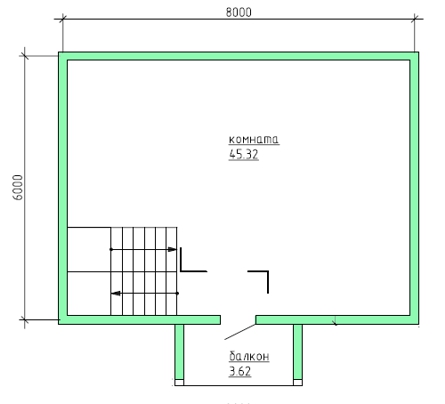
Размеры дома:
6 х 8 м
Этажей:
2
Гараж:
Срок строительства:
дней
- Комплектация
- Планировка
- Ход строительства
Недорогой дом из экологичного материала. Варианы отделки: под покраску (например Валтти Колор или Винха фирмы Тиккурила) или обшивку сайдингом.
Состав помещений
| 1 этаж | прихожая, холл, кухня, гостиная, ванная (сауна) или котельная, с/у | |
| 2 этаж | общая комната (с возможностью разделения), балкон |
Используемые материалы
| Фундамент | ленточный монолитный железобетонный на буронабивных сваях | |
| Стены цоколя | рядовая кирпичная кладка с армированием | |
| Стены наружные | из бруса размером 150 х 150 мм. | |
| Стены внутренние | из бруса размером 150 х 150 мм., каркасные с утеплением и звукоизоляцией под обшивку вагонкой или другим материалом | |
| Перекрытия | по деревянным балкам | |
| Крыша | мансардная | |
| Кровля | металлочерепица |
Состав проекта (ведомость чертежей), лист, наименование
- Ведомость чертежей
- Общие данные
- Фасад спереди
- Фасад справа
- Фасад слева
- Фасад сзади
- План котлована
- План фундамента
- Сечение по ростверку и свае
- План кладки цоколя
- План 1 этажа
- План раскладки балок перекрытия 1 этажа
- План 2 этажа
- Разрез 1-1
- Разрез 2-2
- Вид спереди (брус)
- Вид справа (брус)
- Вид слева (брус)
- Вид сзади (брус)
- План стропильной части
- План кровли
- Полная калькуляция работ и материалов в текущих ценах (примерно 5 листов)





