ЧЕМОШУР-2
Цена коробки:
7274446 р.
Цена проекта:
72700 р.
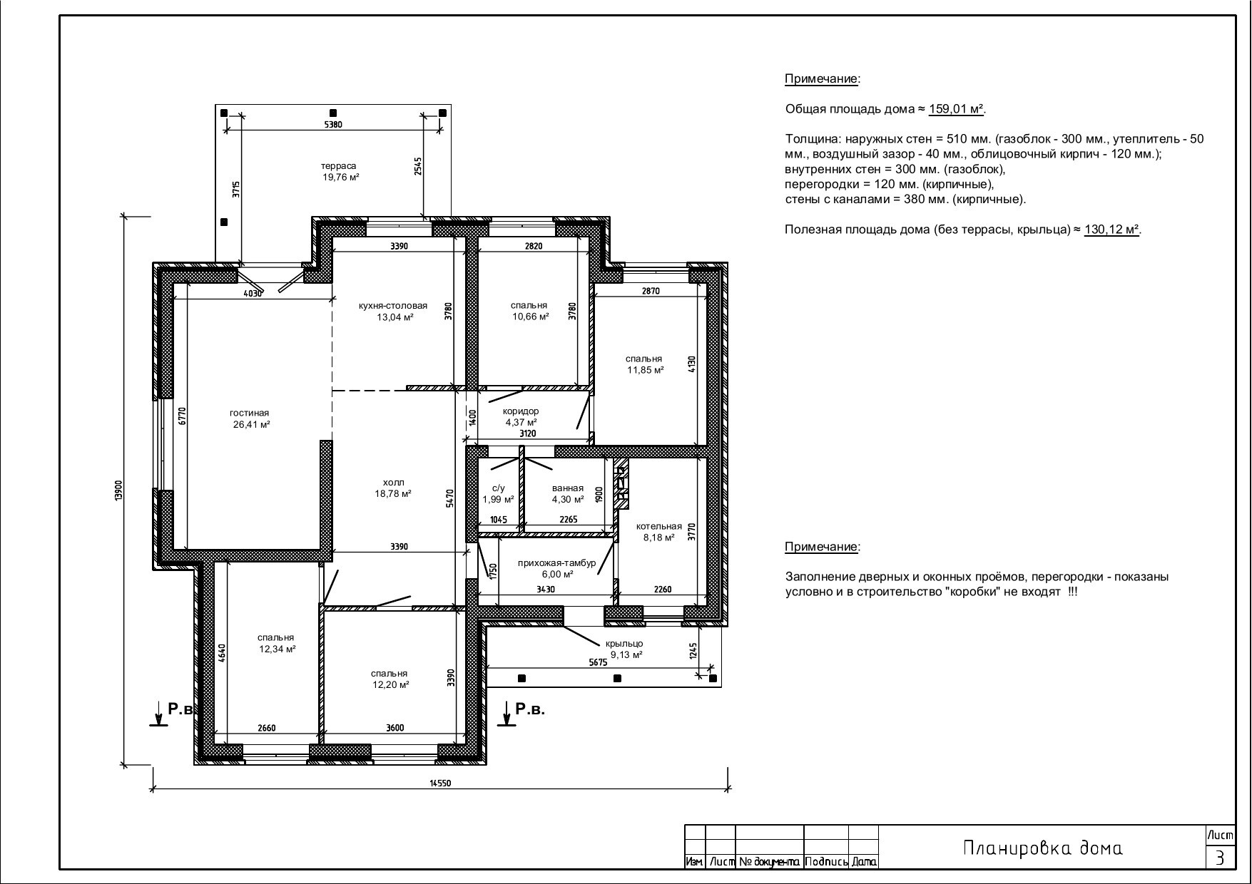
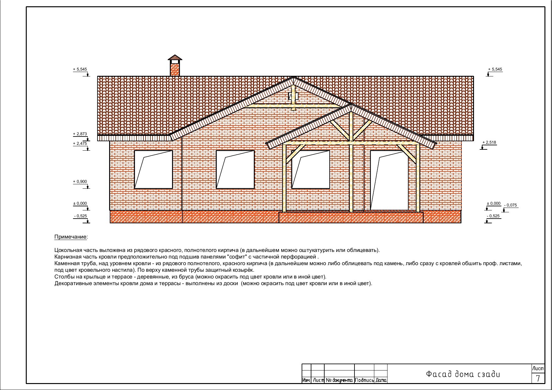
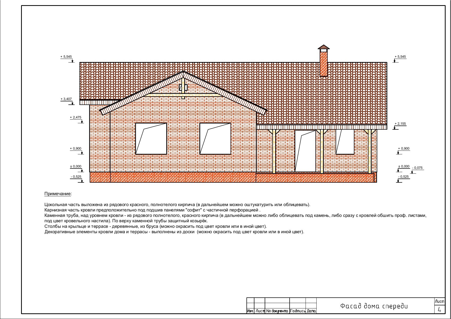
Общая площадь:
159 м2
Размеры дома:
14,55 х 13,90 м
Этажей:
1
Гараж:
Срок строительства:
дней

