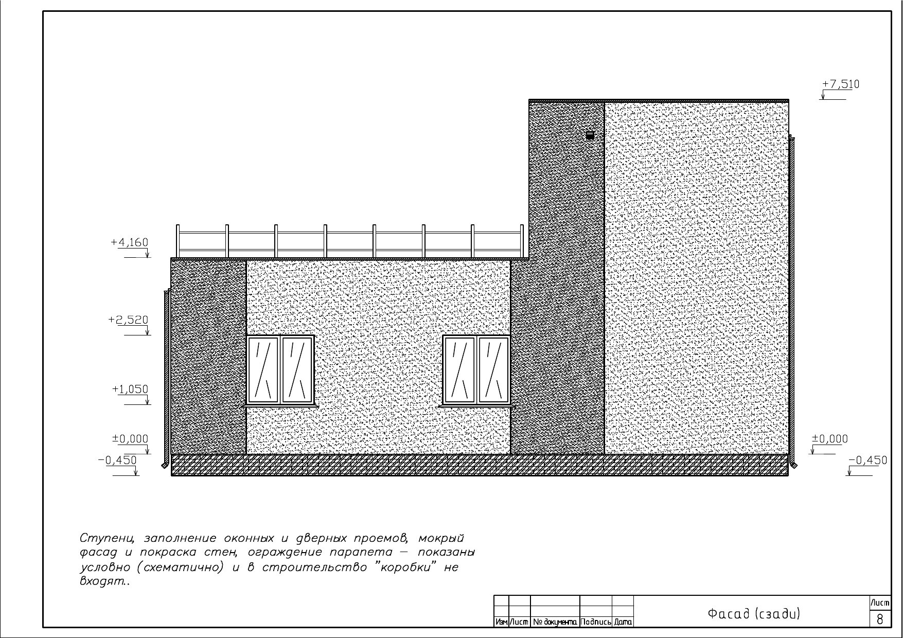
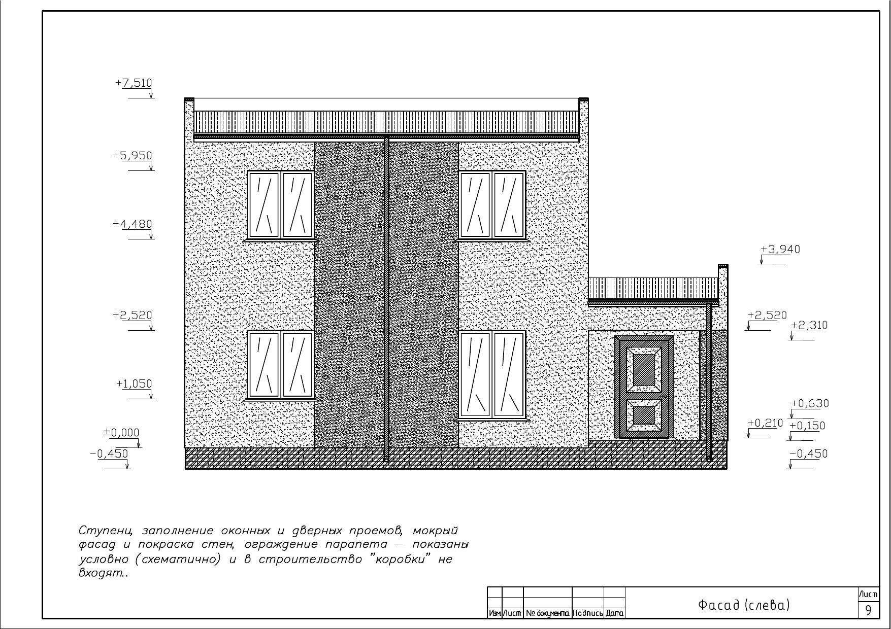
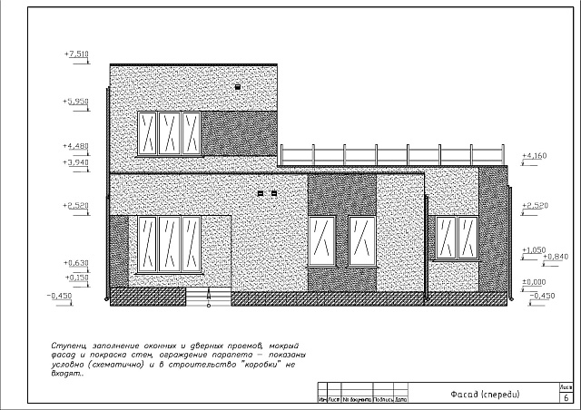
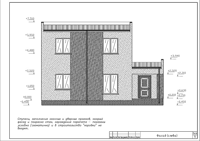
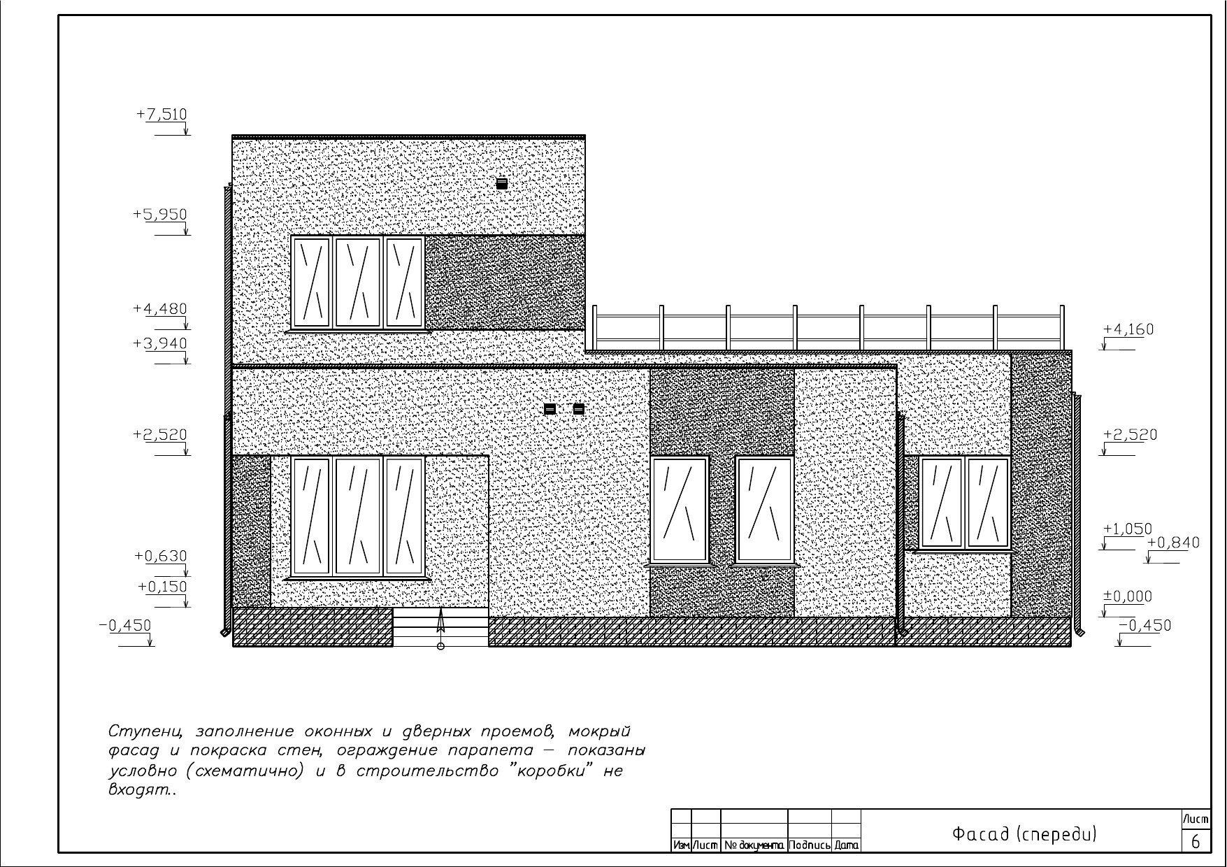
ХАЙ-ТЕК ЛАЙТ
Цена коробки:
4598338 р.
Цена проекта:
46000 р.
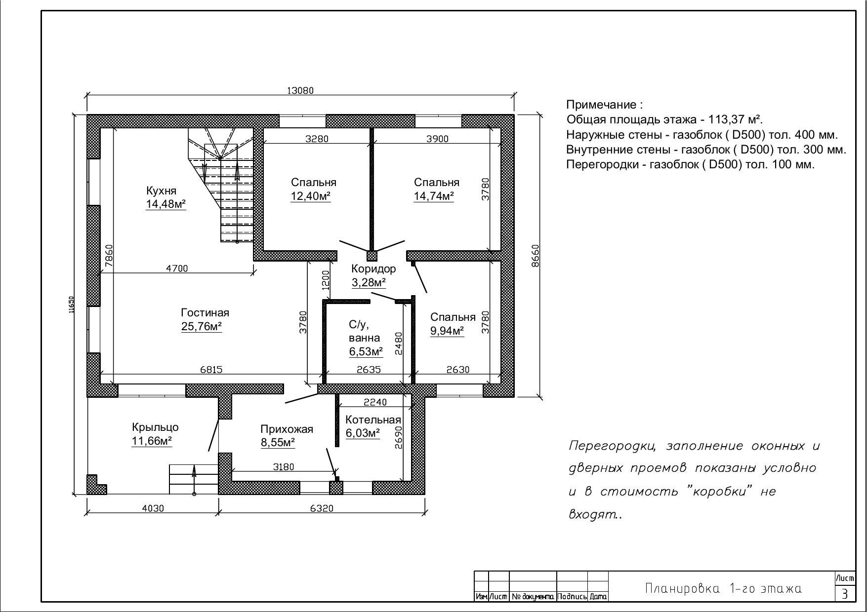
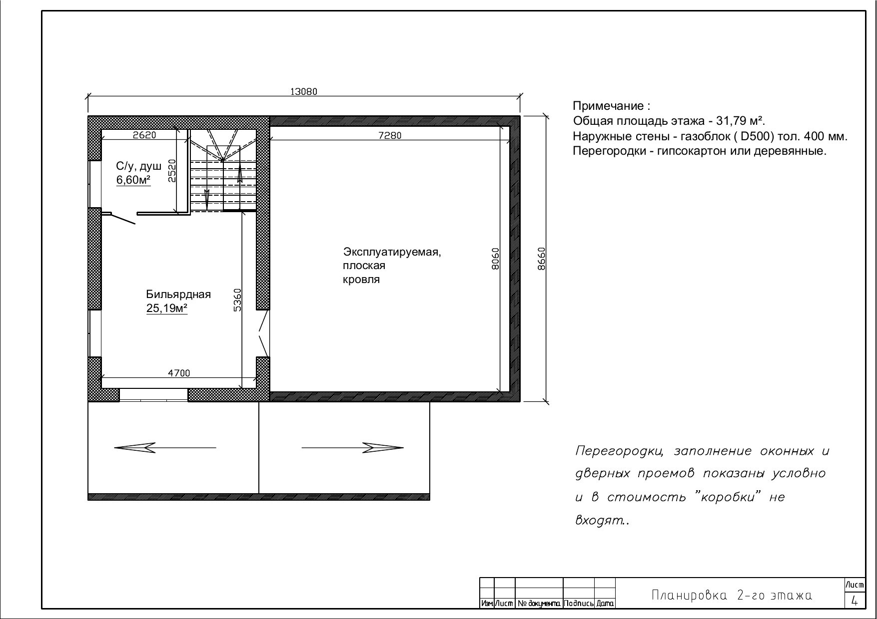
Общая площадь:
145 м2
Размеры дома:
11,65 х 13,08 м
Этажей:
2
Гараж:
Срок строительства:
дней


