КОРКА-3
Цена коробки:
3299847 р.
Цена проекта:
33000 р.
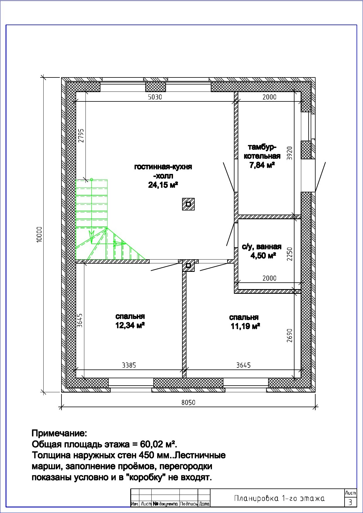
Общая площадь:
104 м2
Размеры дома:
8,05 х 10,00 м
Этажей:
1
Гараж:
Срок строительства:
дней


