МАРГАРИТА
Цена коробки:
3231537 р.
Цена проекта:
32300 р.
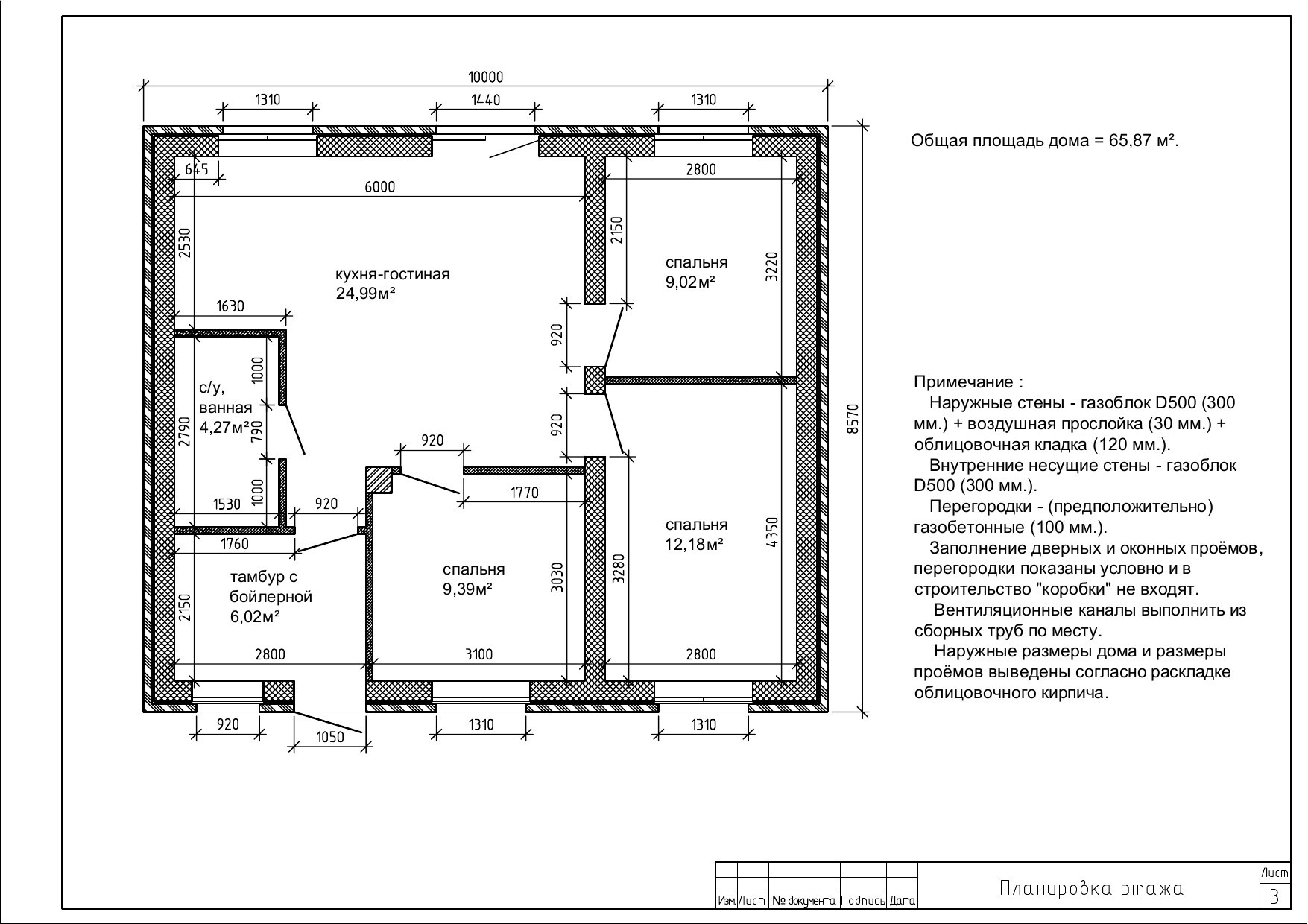
Общая площадь:
66 м2
Размеры дома:
10 х 8,57 м
Этажей:
1
Гараж:
Срок строительства:
дней

