МИРНЫЙ
Цена коробки:
6101198 р.
Цена проекта:
61000 р.
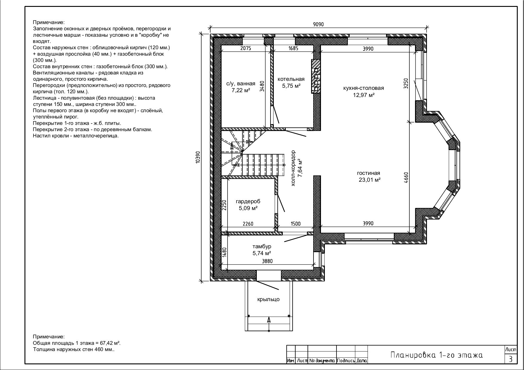
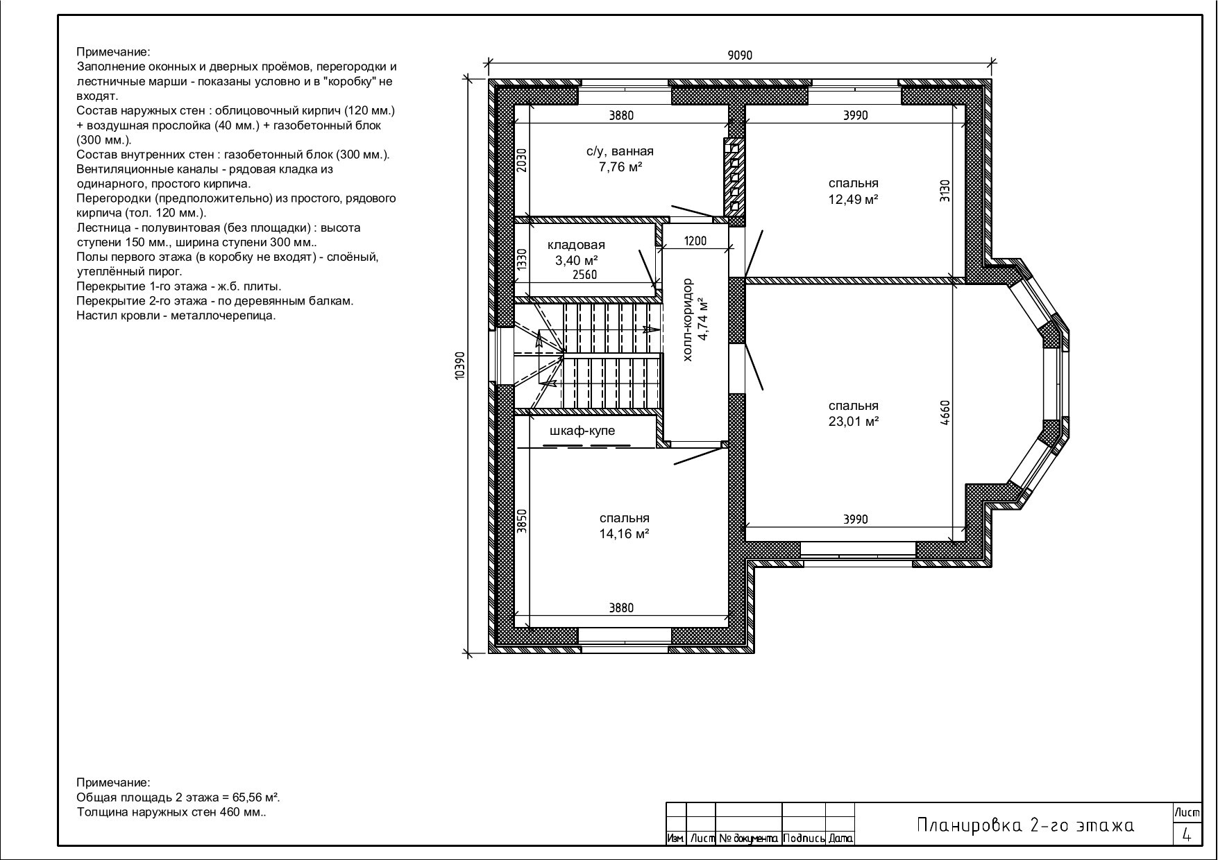
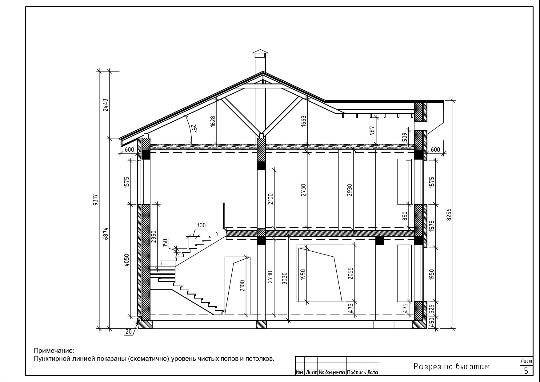
Общая площадь:
133 м2
Размеры дома:
9,09 х 10,39м м
Этажей:
2
Гараж:
Срок строительства:
дней


