ОРЛЁНОК
Цена коробки:
4995865 р.
Цена проекта:
50000 р.
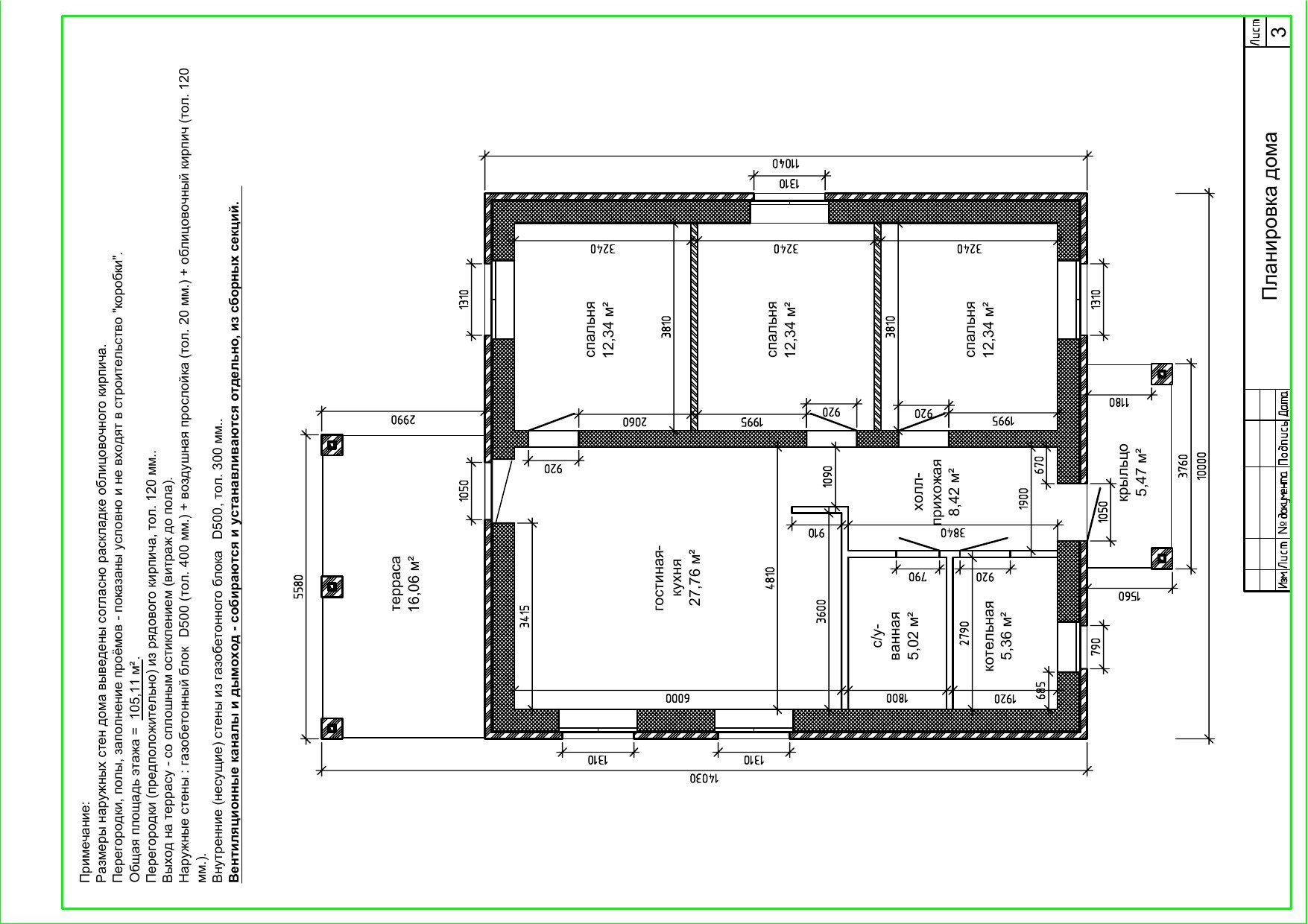
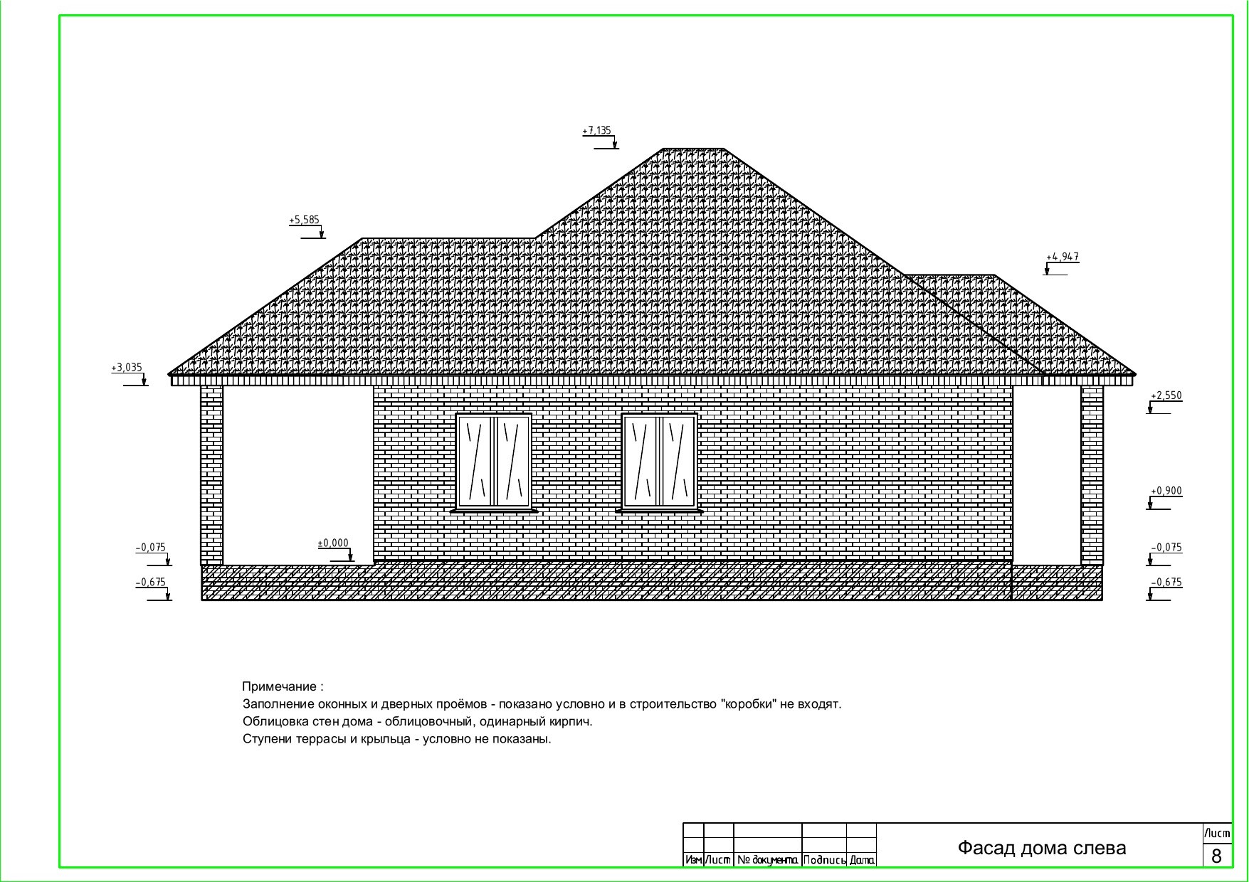
Общая площадь:
105 м2
Размеры дома:
10,0 х 11,04 м
Этажей:
1
Гараж:
Срок строительства:
дней

