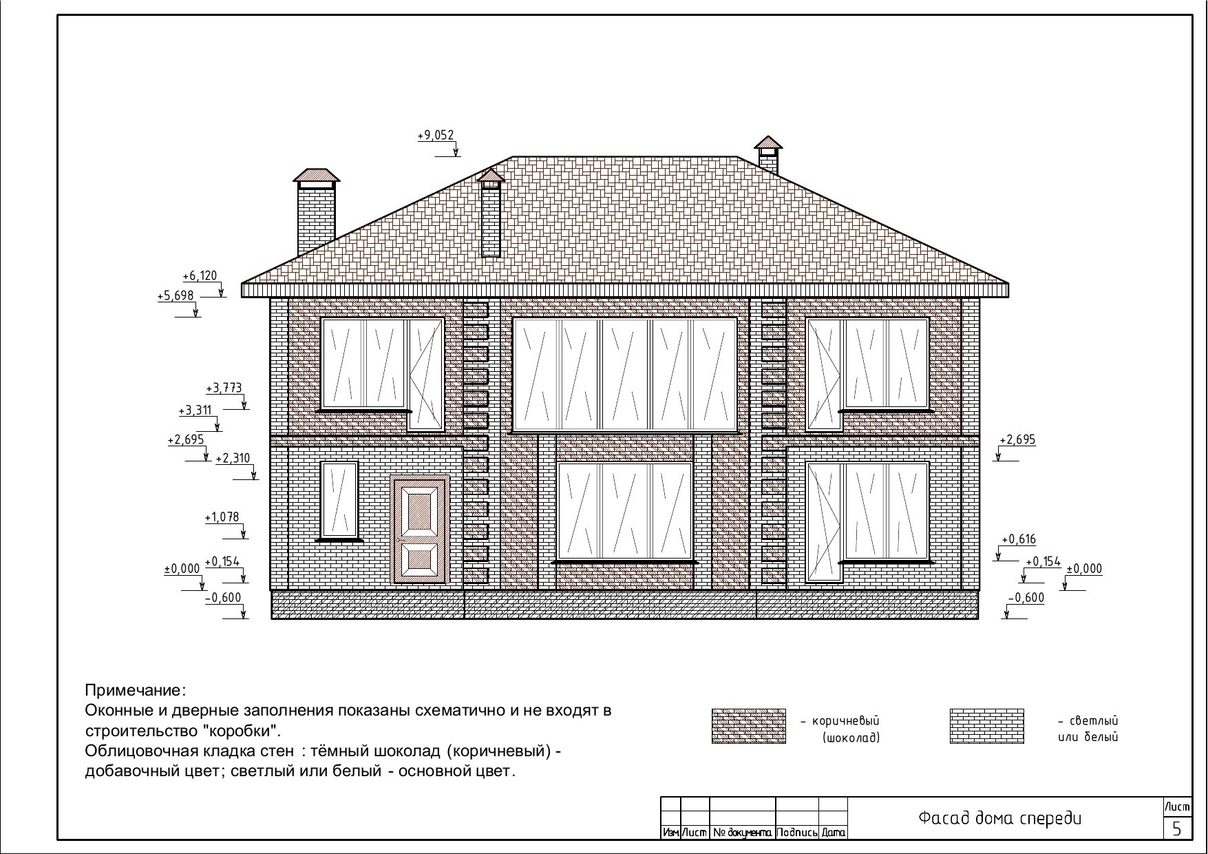
ПОРОТЕРМ
Цена коробки:
9878302 р.
Цена проекта:
98800 р.
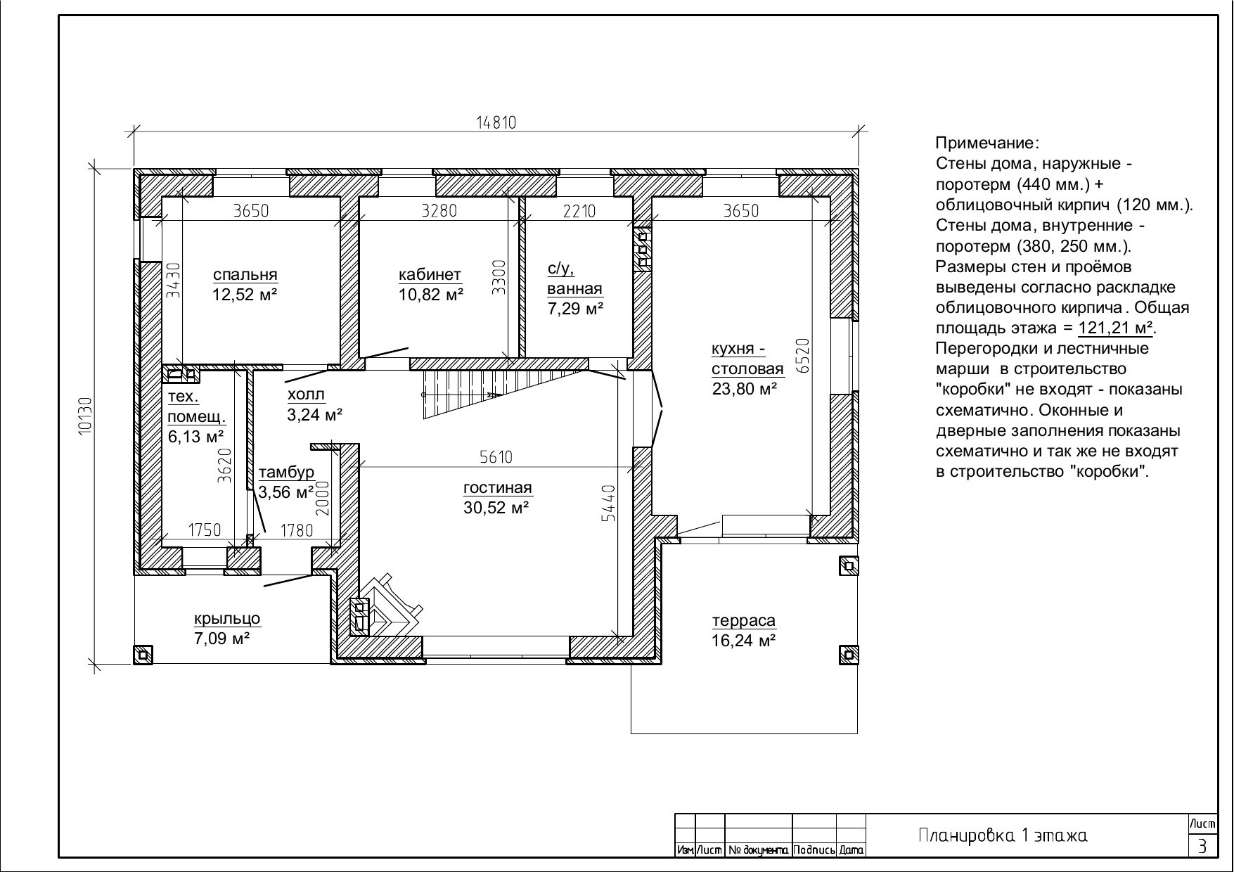
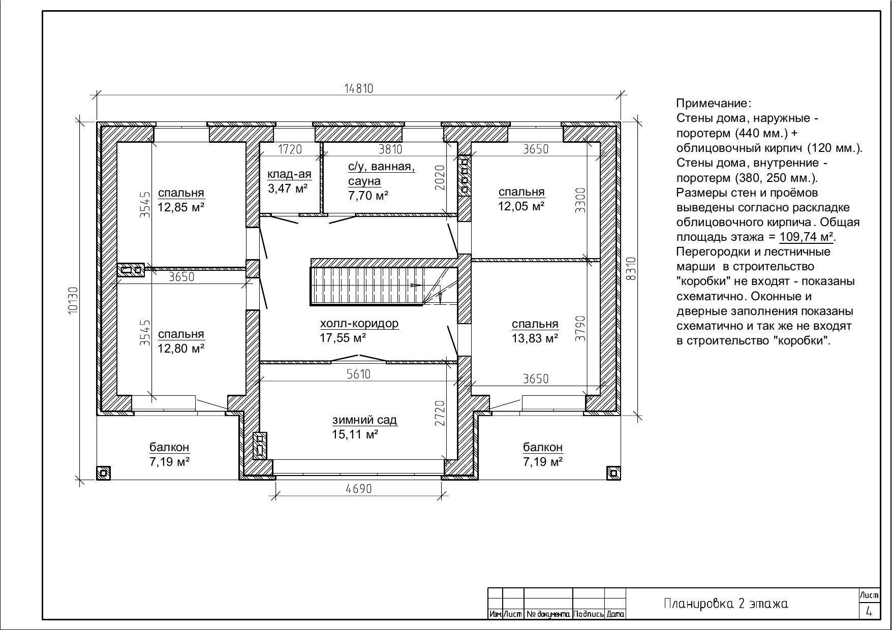
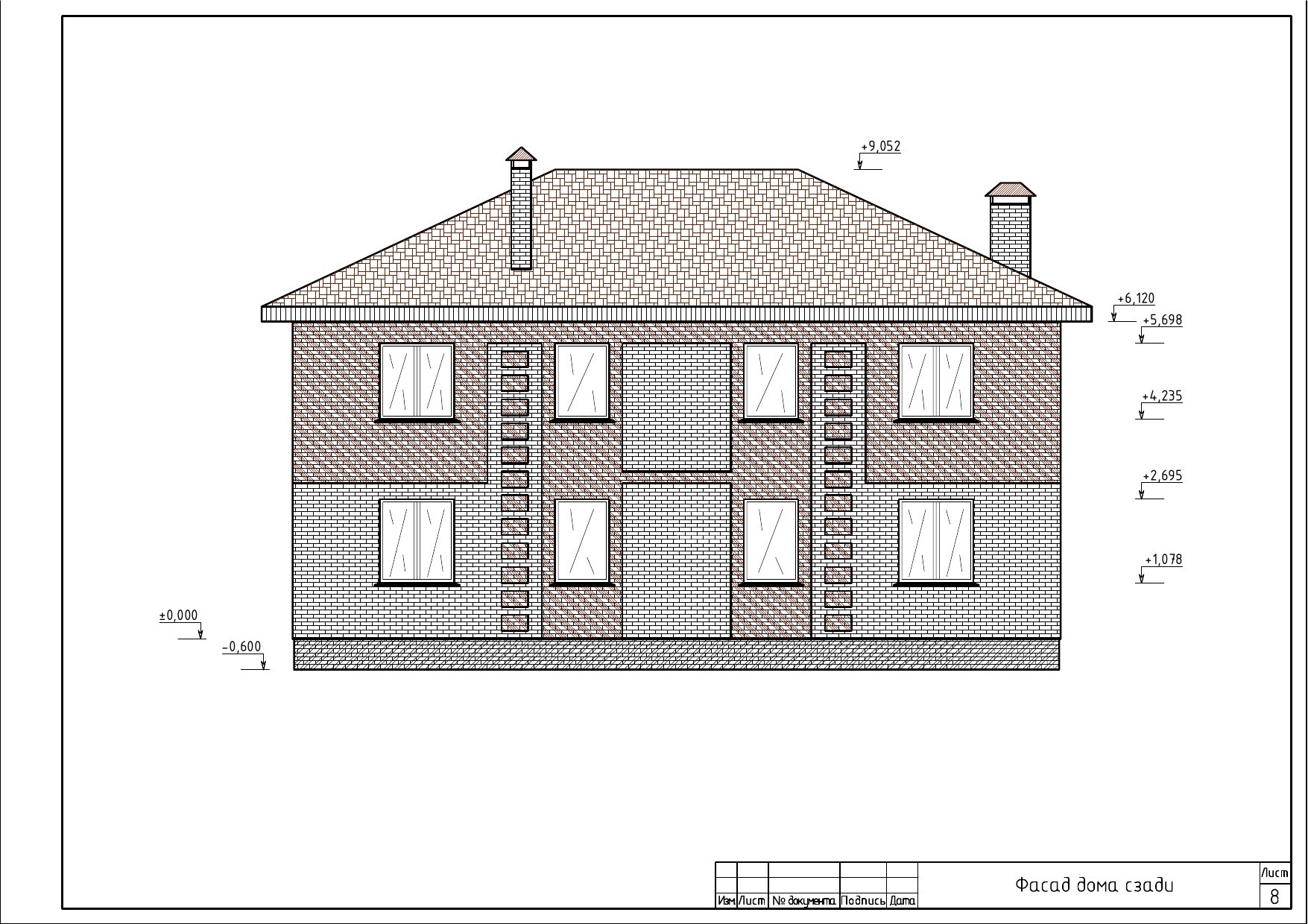
Общая площадь:
231 м2
Размеры дома:
10,13 х 14,81 м
Этажей:
2
Гараж:
Срок строительства:
дней


