БАРИН
Цена коробки:
8766128 р.
Цена проекта:
87700 р.
Общая площадь:
182 м2
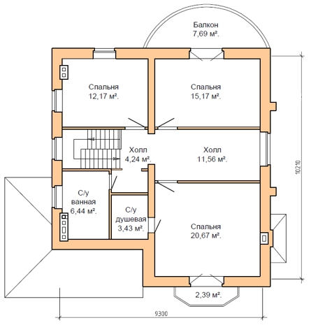
Размеры дома:
9.3 x 10.21 м
Этажей:
2
Гараж:
Срок строительства:
240 дней
- Комплектация
- Планировка
- Ход строительства
Состав помещений
| 1 этаж | крыльцо, тамбур, коридор, котельная, с/у, лестничный холл, кухня, столовая, гостиная |
| 2 этаж | лестничный холл, холл, 3 спальни, с/у с душевой с входом из спальни хозяев, с/у с ванной, 2 балкона |
Используемые материалы
| Фундамент | ленточный монолитный железобетонный на буронабивных сваях |
| Стены цоколя | рядовая кирпичная кладка с армированием |
| Стены наружные | газобетонные блоки, 300мм, облицовка керамическим полуторным кирпичом (желтый, коричневый) |
| Фасад | стены дома отделаны облицовочным кирпичом керамическим полуторным желтым, узоры выполнены из керамического полуторного коричневого кирпича (обрамление окон, карнизы, отделка углов). Цоколь, лопатки, балкон выполнены из керамического рядового простого кирпича, под декор |
| Стены внутренние | газобетонные блоки, 300 мм. |
| Перекрытия | из сборных ж/б плит на армированном поясе из кирпича |
| Крыша | мансардная |
| Кровля | металлочерепица |

