БРУТАЛЬНЫЙ
Цена коробки:
10360671 р.
Цена проекта:
103600 р.
Общая площадь:
298 м2
Размеры дома:
м
Этажей:
2
Гараж:
Срок строительства:
240 дней
- Комплектация
- Планировка
- Ход строительства
Состав помещений
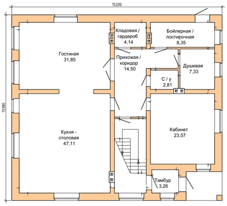
| 1 этаж | тамбур, прихожая/коридор, кладовая/гардероб, душевая, с/у, кабинет, кухня-столовая, гостиная | |
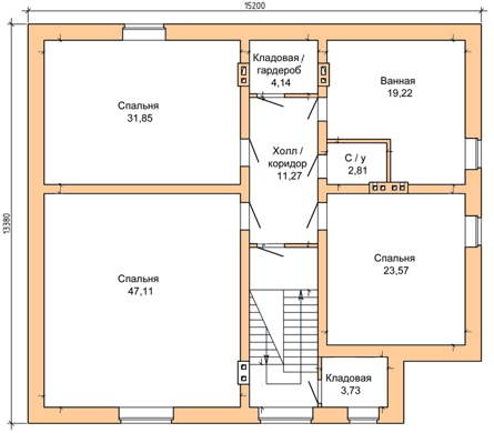
| 2 этаж | кладовая, коридор, ванная, с/у, 3 спальни, гардероб |
Используемые материалы
| Фундамент | ленточный монолитный железобетонный на буронабивных сваях | |
| Стены цоколя | рядовая кирпичная кладка с армированием | |
| Стены наружные | газобетонные блоки, 400 мм., облицовка кирпичом | |
| Фасад | стены дома отделаны облицовочным коричневым кирпичом. На углах и для обрамления окон использован рваный силикатный белый кирпич. Цоколь выполнен из красного кирпича, рядового. Вентканалы обшиты под цвет кровли | |
| Стены внутренние | газобетонные блоки, 300 мм. | |
| Перекрытия | по деревянным и металлическим балкам | |
| Крыша | мансардная | |
| Кровля | металлочерепица |

