Дом с полумансадным этажом ДОБРЫЙ
Цена коробки:
5704722 р.
Цена проекта:
57000 р.
Общая площадь:
138 м2
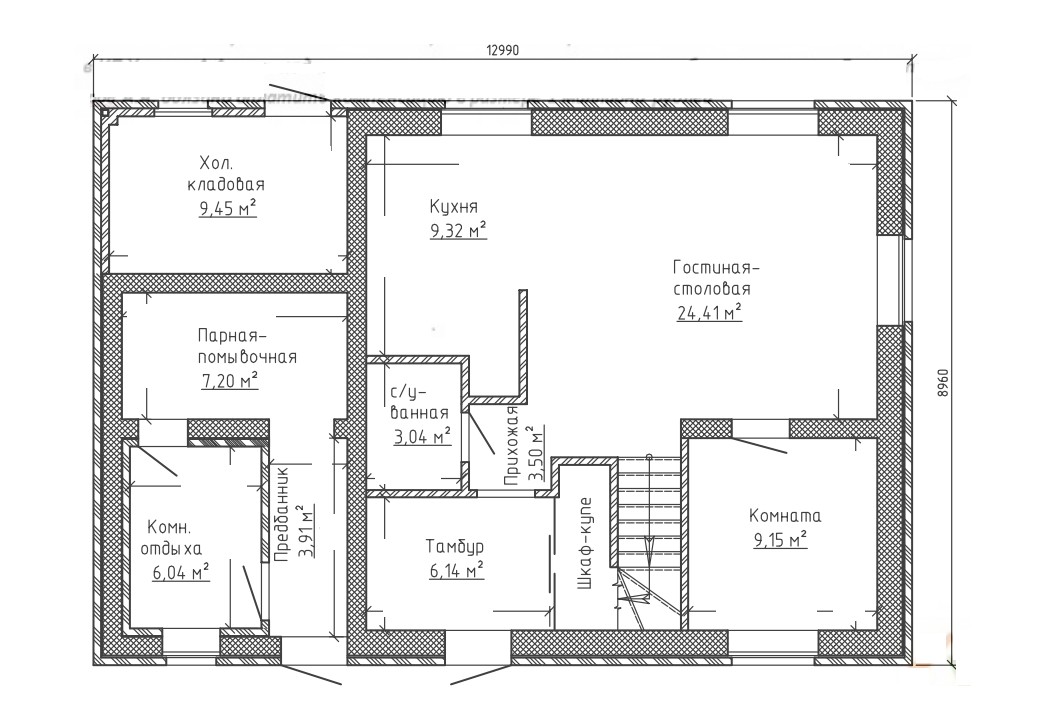
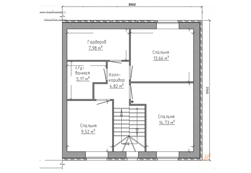
Размеры дома:
12,99 х 8,96 м
Этажей:
2
Гараж:
Срок строительства:
240 дней
- Комплектация
- Планировка
- Ход строительства
«Добрый» - дом отличает асимметричный фасад шириной почти 13 метров при небольшой глубине в плане, что позволяет разместить его на нестандартном участке и придаёт проекту дополнительную основательность. В левой части дома расположена большая холодная кладовая и полнофункциональный банный комплекс с комнатой отдыха.
Состав помещений
| 1 этаж | тамбур, ниша под шкаф-купе, прихожая, с/у-ванная, комната, гостиная-столовая, кухня, предбанник, комната отдыха, парная-помывочная, холодная кладовая |
| 2 этаж | холл-коридор, с/у-ванная, гардероб, 3 спальни |
Используемые материалы
| Фундамент | ленточный монолитный железобетонный на буронабивных сваях |
| Стены цоколя | рядовая кирпичная кладка с армированием |
| Стены наружные | газобетонные блоки, 300-400 мм., облицовка кирпичом |
| Фасады | стены дома отделаны облицовочным одинарным кирпичом цвета "солома" и "шоколад". Цоколь выполнен из красного рядового кирпича под отделку камнем. |
| Перекрытия | по деревянным балкам |
| Крыша | полумансардная |
| Кровля | металлочерепица |

