двухквартирный дом ДУПЛЕТ
Цена коробки:
8637527 р.
Цена проекта:
86400 р.
Общая площадь:
257.5 м2
Размеры дома:
м
Этажей:
2
Гараж:
Срок строительства:
240 дней
- Комплектация
- Планировка
- Ход строительства
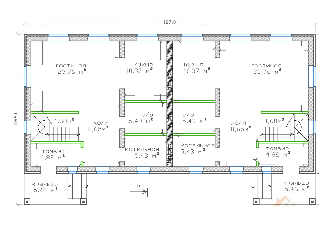
«Дуплет» - двухквартирный двухэтажный дом. Площадь каждой двухэтажной квартиры - 128,74 м2.
Состав помещений
| 1 этаж | крыльцо, тамбур, холл, кладовка, котельная, с/у, гостиная, кухня |
| 2 этаж | холл, с/у, гардероб, 2 спальни |
Используемые материалы
| Фундамент | ленточный монолитный железобетонный на буронабивных сваях |
| Стены цоколя | рядовая кирпичная кладка с армированием |
| Стены наружные | газобетонные блоки, 300 мм., облицовка кирпичом |
| Фасады | стены дома отделаны облицовочным одинарным кирпичом цвета "солома". Цоколь выполнен из красного рядового кирпича под отделку камнем. |
| Перекрытия | по деревянным балкам |
| Крыша | холодный чердак |
| Кровля | металлочерепица |

