ДУШЕВНЫЙ
Цена коробки:
7828958 р.
Цена проекта:
78300 р.
Общая площадь:
181.7 м2
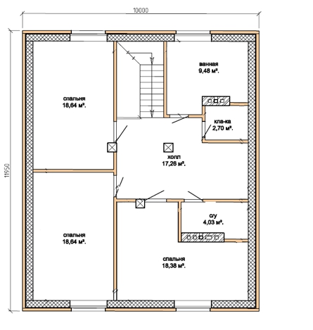
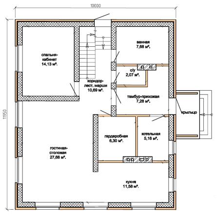
Размеры дома:
10 x 11.95 м
Этажей:
2
Гараж:
Срок строительства:
240 дней
- Комплектация
- Планировка
- Ход строительства
Состав помещений
| 1 этаж | крыльцо, тамбур-прихожая, коридор, с/у, ванная, гардеробная, котельная, гостиная-столовая, кухня, спальня-кабинет |
| 2 этаж | холл, кладовая (гардеробная), ванная, с/у, 3 спальни |
Используемые материалы
| Фундамент | ленточный монолитный железобетонный на буронабивных сваях |
| Стены цоколя | рядовая кирпичная кладка с армированием |
| Стены наружные | газобетонные блоки, 300 мм., облицовка керамическим кирпичом |
| Фасад | стены комплекса отделаны облицовочным керамическим кирпичом песочного цвета. Узоры, разделительная междуэтажная полоса и обрамления окон выполнены из облицовочного коричневого кирпича. Цоколь из красного кирпича, рядового |
| Стены внутренние | газобетонные блоки, 300 мм. |
| Перекрытия | полы 1 этажа - ж/б плиты; 2 этажа - сборные ж/б. |
| Крыша | мансардная |
| Кровля | гибкая черепица |

