Дом однэтажный ЭДУАРД
Цена коробки:
3855495 р.
Цена проекта:
38600 р.
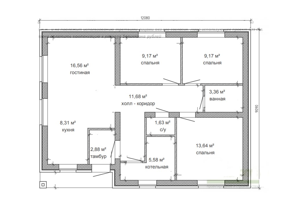
Общая площадь:
82 м2
Размеры дома:
6,5 x 9 м
Этажей:
1
Гараж:
Срок строительства:
240 дней
- Комплектация
- Планировка
- Ход строительства
«Эдуард» - удобный одноэтажный дом. Совмещенная гостиная и кухня-столовая 25 м², спальня хозяев и две небольшие изолированные комнаты, раздельные ванная и санузел, котельная-кладовая создают комфортное пространство для проживания семьи из 3-4 человек.
Состав помещений
| 1 этаж | крыльцо, тамбур, холл-коридор, с/у, ванная, котельная-кладовая, гостиная-кухня-столовая, 3 спальни |
Используемые материалы
| Фундамент | ленточный монолитный железобетонный на буронабивных сваях | |
| Стены цоколя | рядовая кирпичная кладка с армированием | |
| Стены наружные | газобетонные блоки D500 300 мм., облицовка керамическим кирпичом | |
| Фасад | стены дома облицованы одинарным керамическим красным кирпичом. Цоколь выполнен из рядового красного кирпича под штукатурку или отделку камнем | |
| Перекрытия | по деревянным балкам | |
| Крыша | холодный чердак | |
| Кровля | гибкая черепица |

