ИРИНА
Цена коробки:
7101606 р.
Цена проекта:
71000 р.
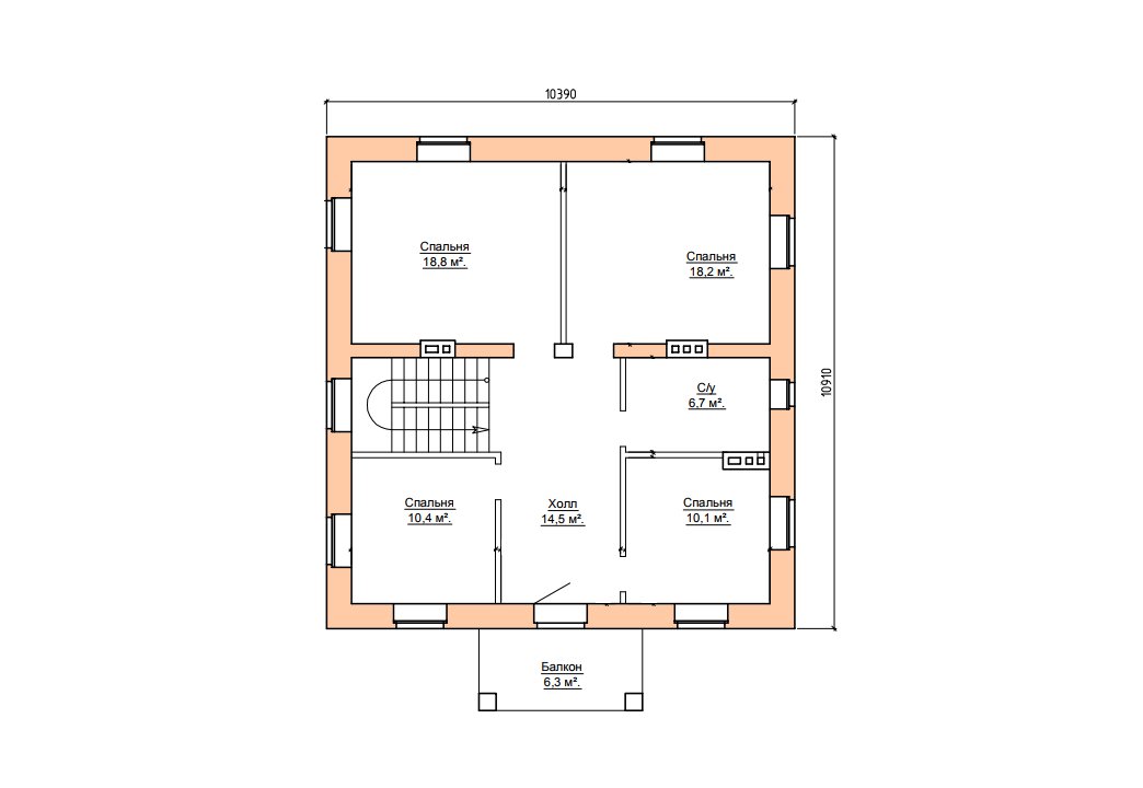
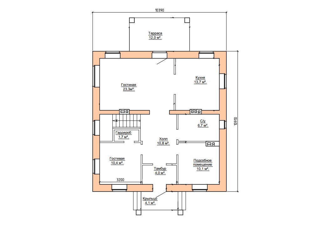
Общая площадь:
157.8 м2
Размеры дома:
13,77 х 8,96 м
Этажей:
2
Гараж:
Срок строительства:
240 дней
- Комплектация
- Планировка
- Ход строительства
«Ирина»
Состав помещений
| 1 этаж | тамбур, холл, гостевая, подсобное помещение, с/у, кухня, гостиная, крыльцо, терраса |
| 2 этаж | холл, с/у, 4 спальни |
Используемые материалы
| Фундамент | ленточный монолитный железобетонный на буронабивных сваях |
| Стены цоколя | рядовая кирпичная кладка с армированием под отделку камнем |
| Стены наружные | газобетонные блоки D500 400 мм. с облицовкой кирпичом |
| Фасад | cтены дома отделаны облицовочным одинарным керамическим кирпичом цвета "солома" и "шоколад". Цоколь выполнен из рядового красного кирпича под отделку камнем |
| Стены внутренние | газобетонные блоки D500 300 мм. |
| Перекрытия | по деревянным балкам |
| Полы 1 этажа | наливные слоеные по индивидуальному заказу |
| Крыша | чердачная |
| Кровля | металлочерепица |

