ИЖИК-2
Цена коробки:
3597109 р.
Цена проекта:
36000 р.
Общая площадь:
113.2 м2
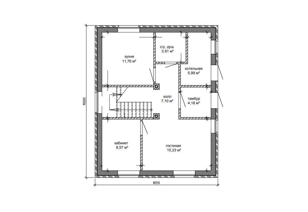
Размеры дома:
10 x 8 м
Этажей:
2
Гараж:
Срок строительства:
240 дней
- Комплектация
- Планировка
- Ход строительства
«Ижик-2»
Состав помещений
| 1 этаж | тамбур, холл, с/у-душ, котельная, кабинет, кухня, гостиная |
| 2 этаж | холл-коридор, 3 спальни, ванная, с/у, гардеробная |
Используемые материалы
| Фундамент | ленточный монолитный железобетонный на буронабивных сваях |
| Цоколь | рядовая кирпичная кладка с армированием; из красного кирпича рядового под отделку камнем или штукатурку |
| Стены наружные | газобетонные блоки D500 300 мм., облицовка керамическим одинарным кирпичом красного цвета и силикатным кирпичом белого цвета |
| Перекрытия | по деревянным балкам |
| Полы 1 этажа | наливные слоеные по индивидуальному заказу |
| Крыша | полумансардная |
| Кровля | металлочерепица |

