КАНТРИ
Цена коробки:
5794197 р.
Цена проекта:
57900 р.
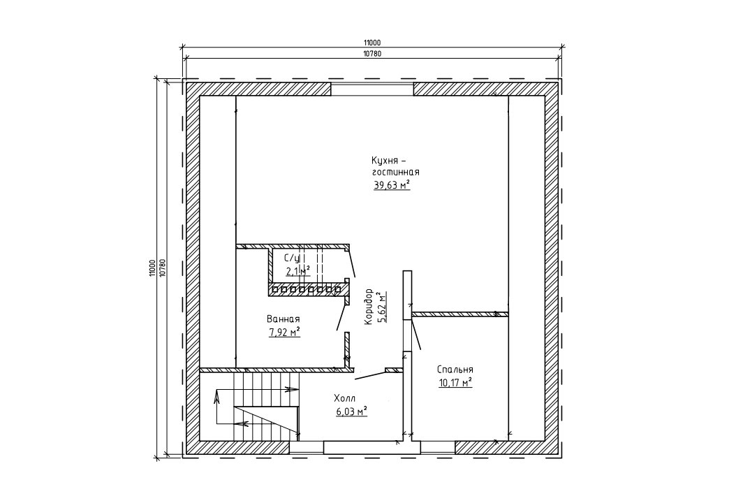
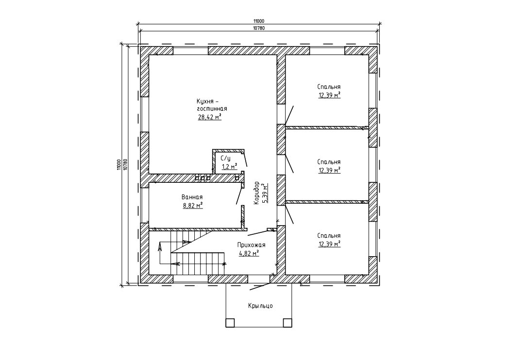
Общая площадь:
157.3 м2
Размеры дома:
11 х 11 м
Этажей:
2
Гараж:
Срок строительства:
240 дней
- Комплектация
- Планировка
- Ход строительства
«Кантри» - полностью кирпичный дом под наружное утепление и отделку; планировка сделана для семьи из двух поколений.
Состав помещений
| 1 этаж | прихожая, коридор, с/у, ванная, кухня-гостиная, 3 спальни |
| 2 этаж | холл, коридор, спальня, кухня-гостиная, ванная, с/у |
Используемые материалы
| Фундамент | ленточный монолитный железобетонный на буронабивных сваях |
| Стены цоколя | рядовая кирпичная кладка с армированием под отделку камнем |
| Стены наружные | рядовая кирпичная кладка с армированием под утепление и штукатурку |
| Стены внутренние | рядовая кирпичная кладка с армированием |
| Перекрытия | монолитная ж/б плита |
| Полы 1 этажа | наливные слоеные по индивидуальному заказу |
| Крыша | полумансардная с чердаком |
| Кровля | металлочерепица |

