КЛАССИКА
Цена коробки:
7632425 р.
Цена проекта:
76300 р.
Общая площадь:
160.6 м2
Размеры дома:
м
Этажей:
2
Гараж:
Срок строительства:
240 дней
- Комплектация
- Планировка
- Ход строительства
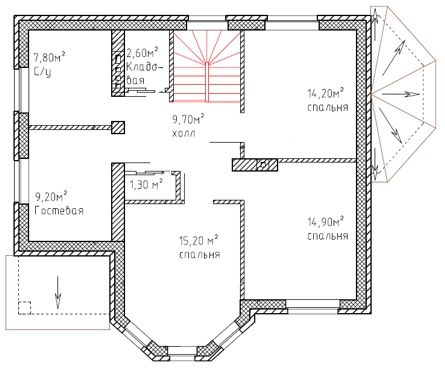
Состав помещений
| 1 этаж | крыльцо, тамбур, прихожая, холл, тех.помещение (сауна), с/у, кухня-столовая с эркером, гостиная с эркером |
| 2 этаж | холл, с/у, гардеробная (кладовая), гостевая, спальня с эркером, 2 спальни |
Используемые материалы
| Фундамент | ленточный монолитный железобетонный на буронабивных сваях |
| Стены цоколя | рядовая кирпичная кладка с армированием |
| Стены наружные | газобетонные блоки, 300 мм., облицовка керамическим кирпичом |
| Фасад | стены дома отделаны лицевым одинарным керамическим кирпичом. Основные цвета кирпича "шоколад" (1 этаж и эркер), "солома" (2 этаж). Узоры из одинарного керамического кирпича белого цвета. Цоколь выполнен из рядового кирпича под отделку камнем |
| Стены внутренние | газобетонные блоки, 300 мм.; из красного рядового кирпича 380 мм. |
| Перекрытия | ж/б плиты перекрытия 1 этаж, по деревянным балкам 2 этаж |
| Крыша | чердачная |
| Кровля | гибкая черепица |

