Дом двухэтажный КОРОБОК-2-1 с облицовкой
Цена коробки:
5223034 р.
Цена проекта:
52200 р.
Общая площадь:
124.1 м2
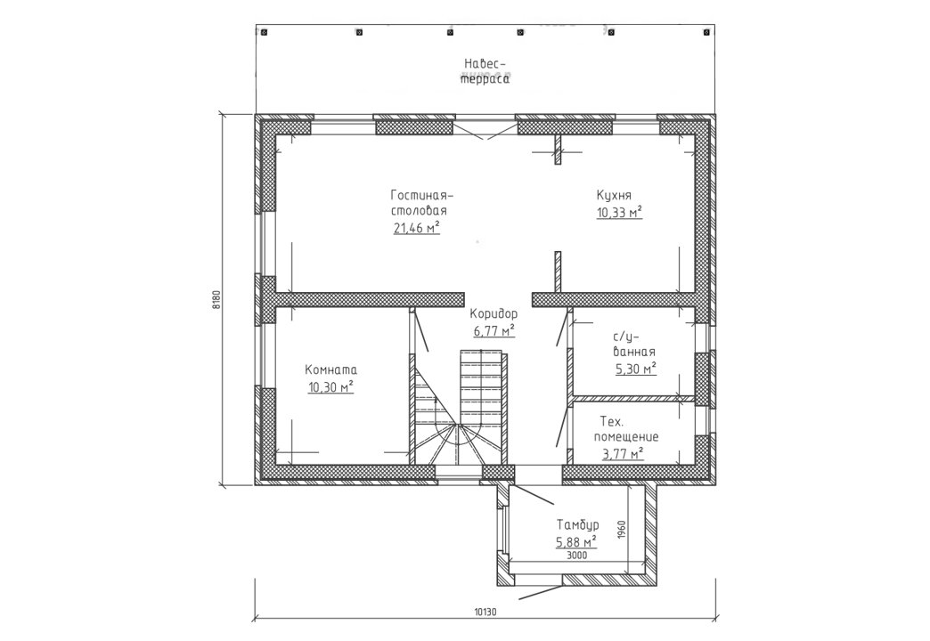
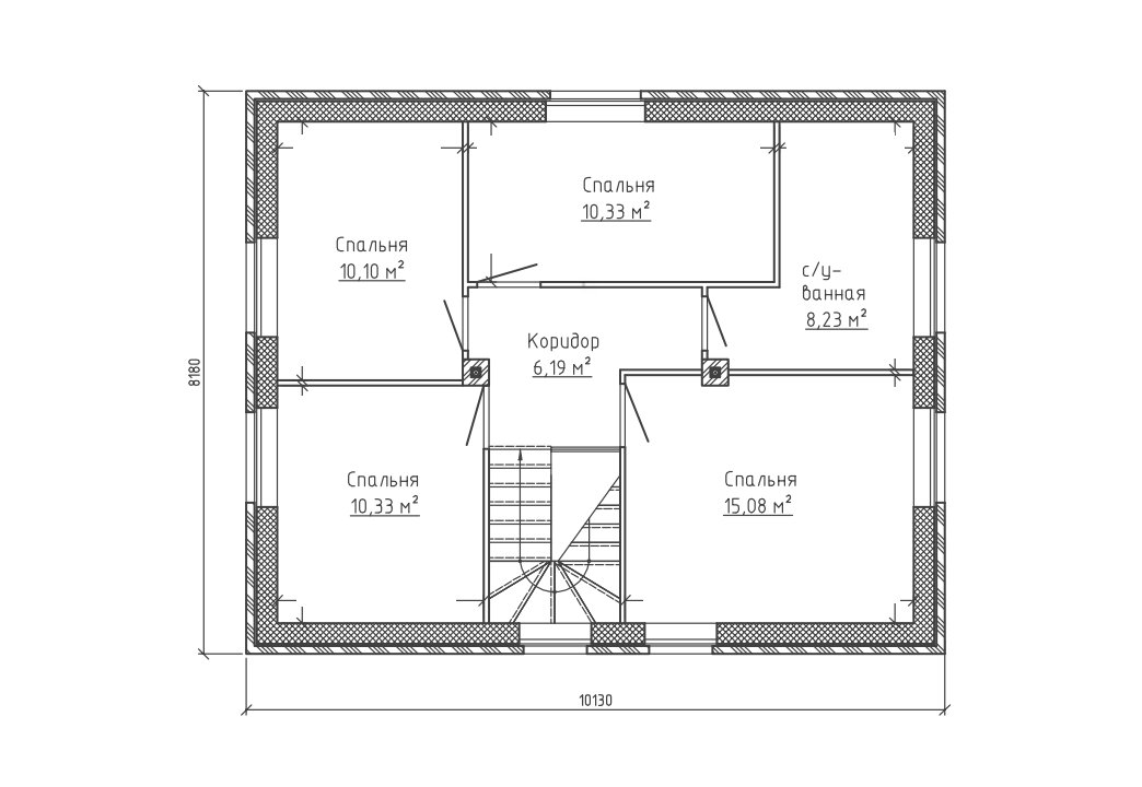
Размеры дома:
10,13 x 8,18 м
Этажей:
2
Гараж:
Срок строительства:
240 дней
- Комплектация
- Планировка
- Ход строительства
«Коробок-2-1 с облицовкой»
Состав помещений
| 1 этаж | тамбур, техническое помещение, ванная - с/у, холл-коридор, комната, гостиная-столовая, кухня |
| 2 этаж | холл-коридор, ванная - с/у, 4 спальни |
Используемые материалы
| Фундамент | ленточный монолитный железобетонный на буронабивных сваях |
| Стены цоколя | рядовая кирпичная кладка с армированием |
| Стены наружные | газобетонные блоки, 300 мм. D500, облицовка кирпичом |
| Фасады | стены дома отделаны облицовочным одинарным кирпичом. Цоколь выполнен из красного рядового кирпича под отделку камнем. |
| Перекрытия | по деревянным балкам |
| Крыша | холодный чердак |
| Кровля | металлочерепица или профлист |

