КОРОБОК с облицовкой
Цена коробки:
3940270 р.
Цена проекта:
39400 р.
Общая площадь:
118.4 м2
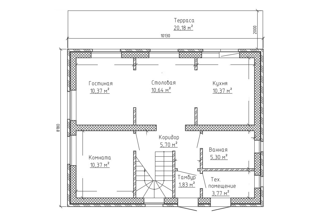
Размеры дома:
10 x 8 м
Этажей:
2
Гараж:
Срок строительства:
240 дней
- Комплектация
- Планировка
- Ход строительства
«Коробок с облицовкой»
Состав помещений
| 1 этаж | тамбур, техническое помещение, ванная, коридор, комната, гостиная, столовая, кухня | |
| 2 этаж | коридор, ванная, гардероб, 3 спальни |
Используемые материалы
| Фундамент | ленточный монолитный железобетонный на буронабивных сваях | |
| Стены цоколя | рядовая кирпичная кладка с армированием | |
| Стены наружные | газобетонные блоки, 300 мм. D500, облицовка кирпичом | |
| Фасады | стены дома отделаны облицовочным одинарным кирпичом красного цвета. Цоколь выполнен из красного рядового кирпича под отделку камнем. | |
| Перекрытия | по деревянным балкам | |
| Крыша | полумансардная | |
| Кровля | металлочерепица |

