ПРАКТИК
Цена коробки:
4267195 р.
Цена проекта:
42700 р.
Общая площадь:
157.8 м2
Размеры дома:
13,77 х 8,96 м
Этажей:
2
Гараж:
Да
Срок строительства:
240 дней
- Комплектация
- Планировка
- Ход строительства
Состав помещений
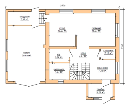
| 1 этаж | тамбур, прихожая, холл, кладовая, с/у, котельная, гостиная, кухня, кладовая (холодная), гараж |
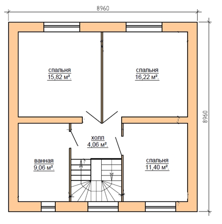
| 2 этаж | лестничный холл, ванная, 3 спальни |
Используемые материалы
| Фундамент | ленточный монолитный железобетонный на буронабивных сваях |
| Стены цоколя | рядовая кирпичная кладка с армированием |
| Стены наружные | газобетонные блоки, 300 мм., облицовка кирпичом, стены гаража и тамбура - кирпичная кладка |
| Фасад | стены дома отделаны облицовочным силикатным полуторным желтым кирпичом. Обрамление оконных проёмов и ворот, карнизы - из облицовочного силикатного полуторного коричневого кирпича. Цоколь выполнен из красного рядового кирпича |
| Стены внутренние | газобетонные блоки, 300 мм.; кирпичная кладка, 380 мм. |
| Перекрытия | по деревянным балкам |
| Крыша | мансардная |
| Кровля | металлочерепица |

