ЛАУРА с гаражом
Цена коробки:
10865117 р.
Цена проекта:
108700 р.
Общая площадь:
245.9 м2
Размеры дома:
м
Этажей:
2
Гараж:
Да
Срок строительства:
240 дней
- Комплектация
- Планировка
- Ход строительства
Состав помещений
| 1 этаж | тамбур, прихожая, парная, моечная, с/у, кухня, гостиная, котельная, кабинет, гараж | |
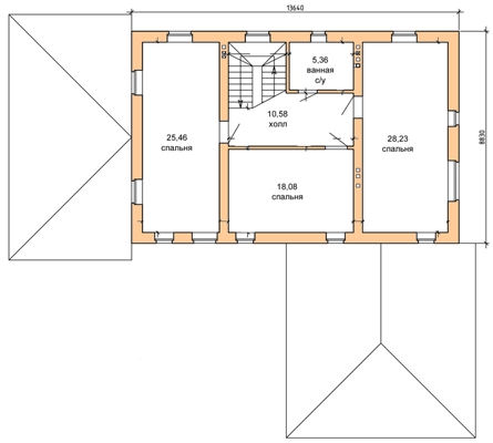
| 2 этаж | холл, ванная + с/у, 3 спальни |
Используемые материалы
| Фундамент | ленточный монолитный железобетонный на буронабивных сваях | |
| Стены цоколя | рядовая кирпичная кладка с армированием | |
| Стены наружные | газобетонные блоки, 300 мм., облицовка кирпичом | |
| Фасад | стены дома отделаны силикатным полуторным желтым кирпичом. Обрамления окон выполнены тем же кирпичом, с выступом относительно основной кладки. Узоры на углах - с выступом, из силикатного полуторного коричневого кирпича. Цоколь выполнен из красного кирпича, рядового. Вентканалы обшиты под цвет кровли | |
| Стены внутренние | газобетонные блоки, 300 мм.; кирпичная кладка (полнотелый рядовой простой кирпич), 380мм. | |
| Перекрытия | монолитное ж/б, по деревянным балкам | |
| Крыша | чердачная | |
| Кровля | металлочерепица |

