ЛЮБИМЫЙ
Цена коробки:
6979305 р.
Цена проекта:
69800 р.
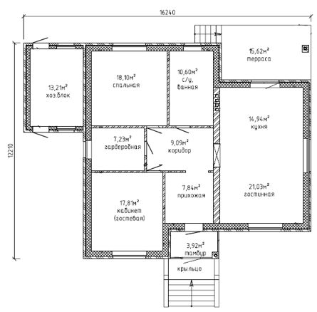
Общая площадь:
139.4 м2
Размеры дома:
13,24 х 12,21 м
Этажей:
1
Гараж:
Срок строительства:
240 дней
- Комплектация
- Планировка
- Ход строительства
Состав помещений
| 1 этаж | тамбур, прихожая, коридор, гостиная, кухня, кабинет (спальня), гардеробная, с/у - ванная, спальня, хозяйственный блок |
Используемые материалы
| Фундамент | ленточный монолитный железобетонный на буронабивных сваях |
| Стены цоколя | рядовая кирпичная кладка с армированием |
| Стены наружные | газобетонные блоки, 300 мм. (по хозблоку 200 мм.), облицовка керамическим кирпичом |
| Фасад | cтены дома отделаны облицовочным утолщённым керамическим кирпичом цвета "абрикос". Обрамления углов и оконных проёмов выполнены из утолщённого керамического кирпича цвета "тёмно-коричневый". Узоры создаются выпуском кирпича на 10-15 мм. |
| Стены внутренние | газобетонные блоки, 300 мм., из рядового керамического кирпича М125, 380 мм. |
| Перекрытия | по деревянным балкам |
| Крыша | с холодным чердаком |
| Кровля | металлочерепица |
