СКРОМНИК
Цена коробки:
3561195 р.
Цена проекта:
35600 р.
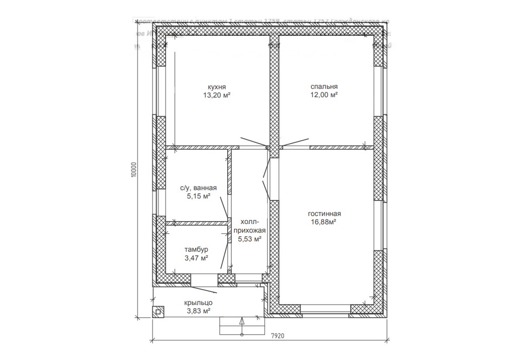
Общая площадь:
60.1 м2
Размеры дома:
10 х 7,92 м
Этажей:
1
Гараж:
Срок строительства:
240 дней
- Комплектация
- Планировка
- Ход строительства
«Малютка-2» - небольшой комфортабельный дом. Вариант проекта «Малютка», но с одним входом.
Состав помещений
Используемые материалы
Состав помещений
| 1 этаж | крыльцо, тамбур, холл-прихожая, с/у - ванная, кухня, гостиная, спальня |
Используемые материалы
| Фундамент | ленточный монолитный железобетонный на буронабивных сваях |
| Стены цоколя | рядовая кирпичная кладка с армированием |
| Стены наружные | газобетонные блоки D500 300 мм., облицовка керамическим кирпичом |
| Фасад | стены дома облицованы одинарным керамическим кирпичом ("солома" и "шоколад"). Цоколь выполнен из рядового красного кирпича под штукатурку или отделку камнем |
| Стены внутренние | газобетонные блоки D500 300 мм. |
| Перекрытия | по деревянным балкам |
| Крыша | холодный чердак |
| Кровля | металлочерепица |
