МИША-2
Цена коробки:
4451951 р.
Цена проекта:
44500 р.
Общая площадь:
108.4 м2
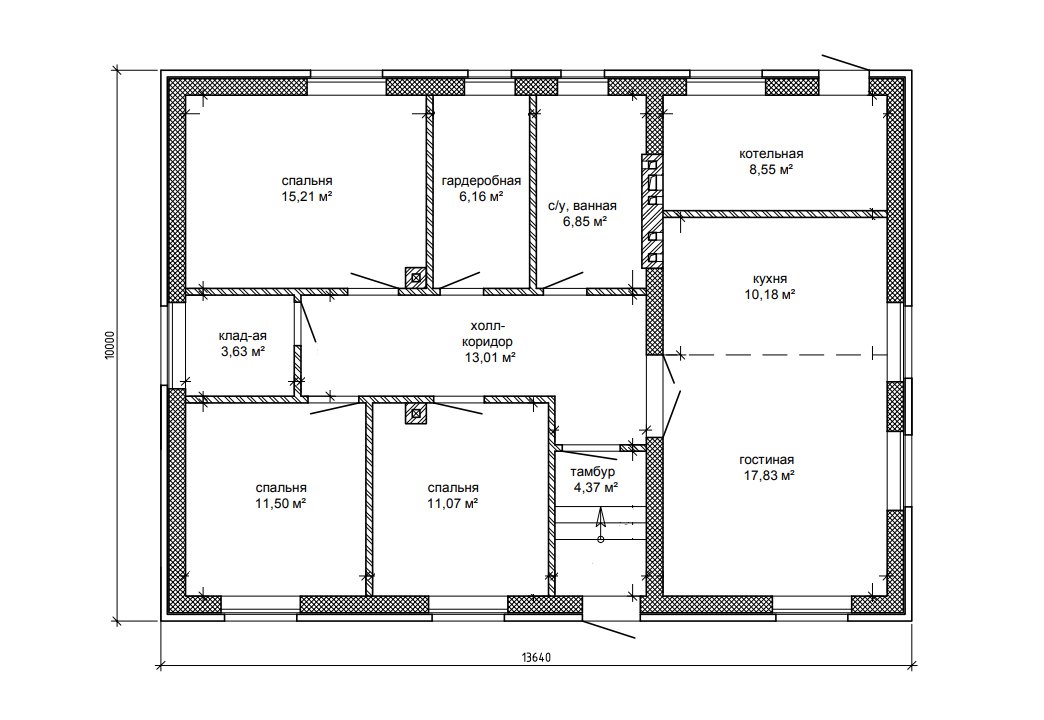
Размеры дома:
13,6 x 10 м
Этажей:
2
Гараж:
Срок строительства:
240 дней
- Комплектация
- Планировка
- Ход строительства
«Миша-2»
Состав помещений
| 1 этаж | тамбур, холл-коридор, с/у-ванная, кладовая, кухня, гостиная, 3 спальни, котельная, гардероб |
Используемые материалы
| Фундамент | ленточный монолитный железобетонный на буронабивных сваях | |
| Цоколь | рядовая кирпичная кладка с армированием; из красного кирпича рядового под отделку камнем или штукатурку | |
| Стены наружные | газобетонные блоки D500 300 мм., облицовка керамическим одинарным кирпичом красного и жёлтого цвета | |
| Перекрытия | по деревянным балкам | |
| Полы 1 этажа | наливные слоеные по индивидуальному заказу | |
| Крыша | холодный чердак | |
| Кровля | металлочерепица |
