МУРАВЕЙ
Цена коробки:
18365923 р.
Цена проекта:
183700 р.
Общая площадь:
465.2 м2
Размеры дома:
м
Этажей:
2
Гараж:
Срок строительства:
240 дней
- Комплектация
- Планировка
- Ход строительства
Состав помещений
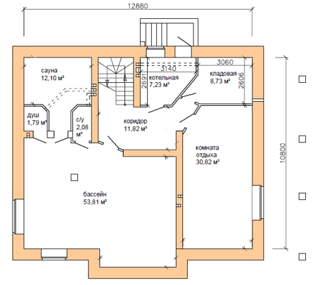
| Цокольный этаж | коридор, котельная, кладовая, комната отдыха, сауна, душ, с/у, бассейн | |
| 1 этаж | терраса, прихожая, холл, гардероб, с/у + ванная, кухня-столовая, гостиная, спальня | |
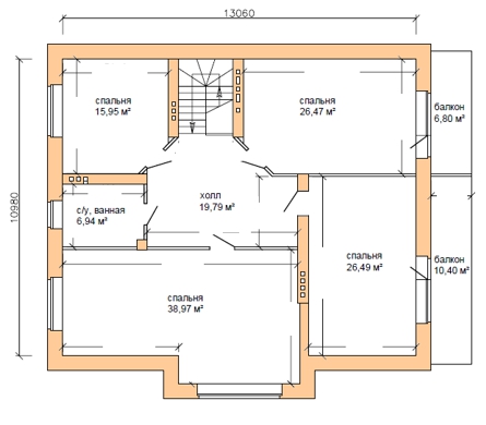
| 2 этаж | холл, с/у+ванная, 4 спальни, 2 балкона |
Используемые материалы
| Фундамент | ленточный монолитный железобетонный на буронабивных сваях | |
| Стены цоколя | рядовая кирпичная кладка с армированием | |
| Стены наружные | газобетонные блоки, 400 мм., облицовка кирпичом | |
| Стены внутренние | газобетонные блоки, 300 мм. | |
| Перекрытия | монолитная плита , ж/б. | |
| Крыша | мансардная | |
| Кровля | гибкая черепица |


