НАТАЛИ
Цена коробки:
12326330 р.
Цена проекта:
123300 р.
Общая площадь:
285.7 м2
Размеры дома:
м
Этажей:
2
Гараж:
Срок строительства:
240 дней
- Комплектация
- Планировка
- Ход строительства
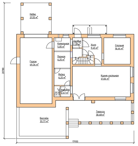
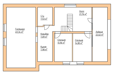
Состав помещений
| 1 этаж | тамбур, холл, котельная, парная, мойка, коридор, с/у, кухня-гостиная, спальня, гараж, терраса, бассейн, навес | |
| 2 этаж | холл, с/у, коридор, кухня, 2 спальни |
Используемые материалы
| Фундамент | ленточный монолитный железобетонный на буронабивных сваях | |
| Стены цоколя | рядовая кирпичная кладка с армированием | |
| Стены наружные | газобетонные блоки, 400 мм., облицовка кирпичом | |
| Фасад | стены дома отделаны силикатным полуторным желтым кирпичом ("рваный"). Узоры на углах, обрамление окон и облицовка столбов выполнены из коричневого "рваного" лицевого одинарного кирпича. Имитация цоколя из простого рядового красного кирпича | |
| Стены внутренние | газобетонные блоки, 300 мм.; перегородки - кирпичная кладка, 120 мм. | |
| Перекрытия | монолитное ж/б (1 этаж), по металлическим балкам. | |
| Крыша | мансардная | |
| Кровля | металлочерепица |

