НОВИНКА
Цена коробки:
6468946 р.
Цена проекта:
64700 р.
Общая площадь:
150.5 м2
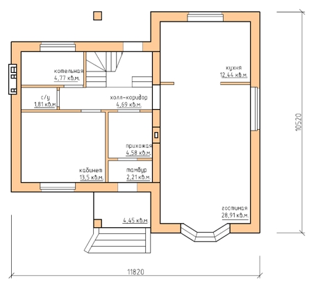
Размеры дома:
11,82 х 10,52 м
Этажей:
2
Гараж:
Срок строительства:
240 дней
- Комплектация
- Планировка
- Ход строительства
Состав помещений
| 1 этаж | тамбур, прихожая, холл-коридор, с/у, котельная, кабинет, кухня, гостиная |
| 2 этаж | холл, гардеробная, ванная + с/у, 3 спальни |
Используемые материалы
| Фундамент | ленточный монолитный железобетонный на буронабивных сваях |
| Стены цоколя | рядовая кирпичная кладка с армированием |
| Стены наружные | газобетонные блоки, 300 мм., облицовка силикатным кирпичом |
| Фасад | стены дома отделаны силикатным облицовочным кирпичом красного цвета, элементы фасада - из белого и желтого силикатного облицовочного кирпича. Эркер выполнен из керамического рядового кирпича под отделку камнем. Цоколь из красного кирпича, рядового |
| Стены внутренние | газобетонные блоки, 300 мм., кирпичная кладка, 380 мм. |
| Перекрытия | 1 этаж - монолитное ж/б, 2 этаж - по деревянным балкам |
| Крыша | чердачная |
| Кровля | металлочерепица |

