ОДНОЭТАЖНЫЙ
Цена коробки:
7181972 р.
Цена проекта:
71800 р.
Общая площадь:
211.3 м2
Размеры дома:
м
Этажей:
1
Гараж:
Срок строительства:
240 дней
- Комплектация
- Планировка
- Ход строительства
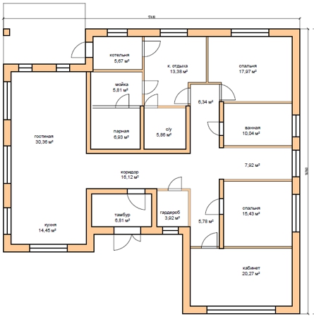
Состав помещений
| 1 этаж | тамбур, коридор, гардероб, гостиная, кухня, кабинет, 2 спальни, ванная, с/у, комната отдыха, котельная, мойка, парная |
Используемые материалы
| Фундамент | ленточный монолитный железобетонный на буронабивных сваях |
| Стены цоколя | рядовая кирпичная кладка с армированием |
| Стены наружные | газобетонные блоки, 300 мм., облицовка кирпичом |
| Фасад | стены дома отделаны кирпичом облицовочным окрашенным бежевым. Цоколь выполнен из простого рядового красного кирпича |
| Стены внутренние | газобетонные блоки, 300 мм.; кирпичная кладка, 250 мм. |
| Перекрытия | по металлическим балкам |
| Крыша | чердачная |
| Кровля | металлочерепица |
