ПАКАТТИ
Цена коробки:
8084535 р.
Цена проекта:
80800 р.
Общая площадь:
136.1 м2
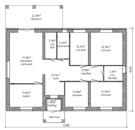
Размеры дома:
10,91 х 15,98 м
Этажей:
1
Гараж:
Срок строительства:
240 дней
- Комплектация
- Планировка
- Ход строительства
Состав помещений
| 1 этаж | крыльцо, тамбур, топочная (или сауна), душ, ванная, с/у, холл, коридор, кухня, столовая-гостиная, 4 спальни, терраса |
Используемые материалы
| Фундамент | ленточный монолитный железобетонный на буронабивных сваях |
| Стены цоколя | рядовая кирпичная кладка с армированием |
| Стены наружные | газобетонные блоки, 400мм, на клею, облицовка керамическим кирпичом |
| Фасад | стены дома отделаны облицовочным керамическим кирпичом "рваный камень" |
| Стены внутренние | газобетонные блоки, 300мм, на клею |
| Перегородки | толщиной 100 мм. из газобетона (по отдельному заказу) |
| Перекрытия | по деревянным балкам |
| Крыша | с холодным чердаком |
| Кровля | гибкая черепица |
