ПИОНЕР-4
Цена коробки:
11283333 р.
Цена проекта:
112800 р.
Общая площадь:
272.8 м2
Размеры дома:
м
Этажей:
2
Гараж:
Да
Срок строительства:
240 дней
- Комплектация
- Планировка
- Ход строительства
Состав помещений
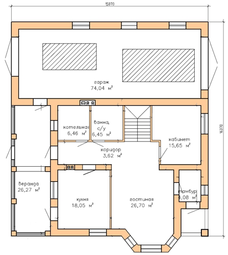
| 1 этаж | веранда, коридор, котельная (или сауна), с/у + ванная, тамбур, кабинет, гостиная, кухня | |
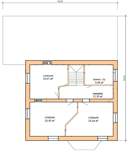
| 2 этаж | коридор, с/у + ванная, 3 спальни |
Используемые материалы
| Фундамент | ленточный монолитный железобетонный на буронабивных сваях | |
| Стены цоколя | рядовая кирпичная кладка с армированием | |
| Стены наружные | газобетонные блоки, 400мм, облицовка кирпичом; стены террасы - кирпичная кладка, 250 мм. | |
| Фасад | стены дома отделаны облицовочным кирпичом полуторным красного цвета. Узоры, карнизы и обрамления окон и дверей - из силикатного белого рядового облицовочного кирпича. Цоколь выполнен из красного кирпича, рядового | |
| Стены внутренние | газобетонные блоки, 400 мм. | |
| Перекрытия | монолитное ж/б (1 этаж), по деревянным балкам (гараж, веранда, 2 этаж) | |
| Крыша | чердачная | |
| Кровля | металлочерепица |

