ПИОНЕР С БАЛКОНОМ
Цена коробки:
4684922 р.
Цена проекта:
46800 р.
Общая площадь:
121 м2
Размеры дома:
9 x 9 м
Этажей:
2
Гараж:
Срок строительства:
240 дней
- Комплектация
- Планировка
- Ход строительства
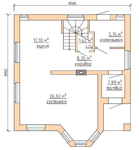
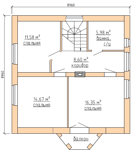
По статистике - самый востребованный проект! Нами построено в различных вариациях около трёх десятков домов по Удмуртии и Республике Татарстан. Презентабельный внешний вид, при сравнительно небольшом усложнении конструкции дома, удобная и рациональная внутренняя планировка позволяют использовать этот дом для постоянного проживания семьи из 3-5 человек. В проекте сразу заложен дымоход под камин. Часто дома по этому проекты строят на продажу. Есть вариант проекта, где балкон заменён эркером, расширяющим одну из спален ("Пионер"). Имеется увеличенный по габаритам (с 9*9 до 10*10 метров) проект "Пионер-2", и далее (до 11*11 метров) проект "Пионер-3".
Состав помещений
| 1 этаж | прихожая, коридор, котельная, с/у, кухня, гостиная |
| 2 этаж | коридор, с/у + ванная, 3 спальни, балкон |
Используемые материалы
| Фундамент | ленточный монолитный железобетонный на буронабивных сваях |
| Стены цоколя | рядовая кирпичная кладка с армированием |
| Стены наружные | газобетонные блоки, 300мм, облицовка кирпичом (красный) |
| Фасад | карнизы, элементы эркера, балкона и части фасада - облицовка кирпичом (белый) |
| Стены внутренние | газобетонные блоки, 300 мм. |
| Перекрытия | по деревянным балкам |
| Крыша | мансардная |
| Кровля | металлочерепица |

