РЕЧНОЙ с гаражом и баней
Цена коробки:
8753639 р.
Цена проекта:
87500 р.
Общая площадь:
226 м2
Размеры дома:
м
Этажей:
2
Гараж:
Да
Срок строительства:
240 дней
- Комплектация
- Планировка
- Ход строительства
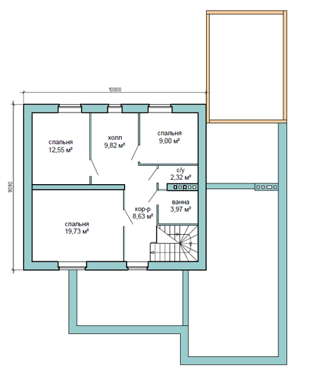
Состав помещений
| 1 этаж | веранда, холл, с/у, кабинет, гостиная + кухня-столовая, комната отдыха, раздевалка, парная, душевая, гараж, котельная | |
| 2 этаж | коридор, ванная, с/у, холл, 3 спальни |
Используемые материалы
| Фундамент | ленточный монолитный железобетонный на буронабивных сваях | |
| Стены цоколя | рядовая кирпичная кладка с армированием | |
| Стены наружные | газобетонные блоки, 300 мм., облицовка керамическим кирпичом; стены бани - брус сечением 180*180 мм. | |
| Фасад | стены дома облицованы одинарным красным керамическим кирпичом. Обрамление оконных проемов, ворот и вертикальные акценты на фасаде выполнены силикатным рваным кирпичом. Цоколь выполнен из красного кирпича, рядового. Каменные трубы обшиты листами металла под цвет кровли | |
| Стены внутренние | газобетонные блоки, 300 мм. | |
| Перекрытия | по деревянным балкам | |
| Крыша | мансардная | |
| Кровля | металлочерепица |

