СЕМЬ-Я
Цена коробки:
8860521 р.
Цена проекта:
88600 р.
Общая площадь:
233.9 м2
Размеры дома:
м
Этажей:
2
Гараж:
Срок строительства:
240 дней
- Комплектация
- Планировка
- Ход строительства
Состав помещений
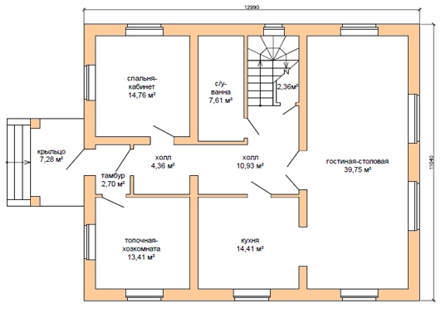
| 1 этаж | тамбур, холл, с/у + ванная комната, кабинет-спальня, топочная + хозкомната, кухня, гостиная-столовая |
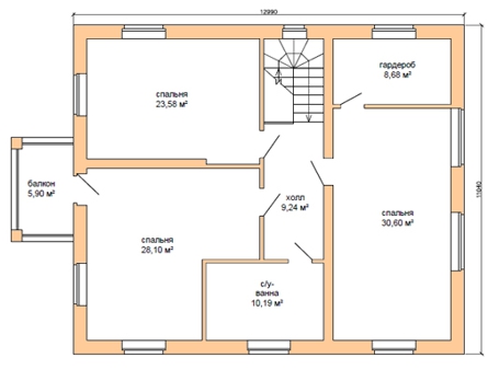
| 2 этаж | холл, с/у + ванная комната, 3 спальни, гардероб, балкон |
Используемые материалы
| Фундамент | ленточный монолитный железобетонный на буронабивных сваях |
| Стены цоколя | рядовая кирпичная кладка с армированием |
| Стены наружные | газобетонные блоки, 300 мм., облицовка кирпичом |
| Фасад | стены дома отделаны силикатным полуторным облицовочным кирпичом желтого цвета. Цоколь и вертикальные опоры крыльца и балкона выполнены из красного кирпича, рядового |
| Стены внутренние | газобетонные блоки, 300 мм. |
| Перекрытия | монолитное ж/б (1 этаж), по деревянным и металлическим балкам (2 этаж) |
| Крыша | чердачная |
| Кровля | гибкая черепица |

