КУПЕЦ с гаражом
Цена коробки:
6170975 р.
Цена проекта:
61700 р.
Общая площадь:
159.5 м2
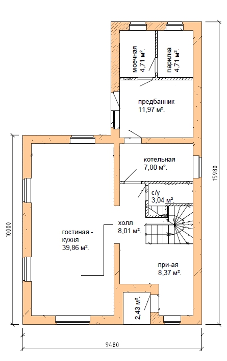
Размеры дома:
10 х 9,48 м
Этажей:
2
Гараж:
Срок строительства:
240 дней
- Комплектация
- Планировка
- Ход строительства
Состав помещений
| 1 этаж | прихожая, холл, с/у, котельная, гостиная-кухня, предбанник, моечная, парилка |
| 2 этаж | холл, с/у, ванная, 3 спальни |
Используемые материалы
| Фундамент | ленточный монолитный железобетонный на буронабивных сваях |
| Стены цоколя | рядовая кирпичная кладка с армированием |
| Стены наружные | газобетонные блоки, 300 мм., облицовка кирпичом |
| Фасад | cтены дома отделаны облицовочным полуторным силикатным кирпичом желтого цвета. Цоколь выполнен из красного кирпича, рядового |
| Стены внутренние | газобетонные блоки, 300 мм. |
| Перекрытия | монолитное, ж/б. |
| Крыша | мансардная |
| Кровля | металлочерепица |

