СВЕТЛЫЙ
Цена коробки:
6882539 р.
Цена проекта:
68800 р.
Общая площадь:
189.6 м2
Размеры дома:
12.3 x 11.6 м
Этажей:
2
Гараж:
Срок строительства:
240 дней
- Комплектация
- Планировка
- Ход строительства
«Светлый»
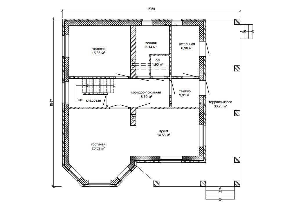
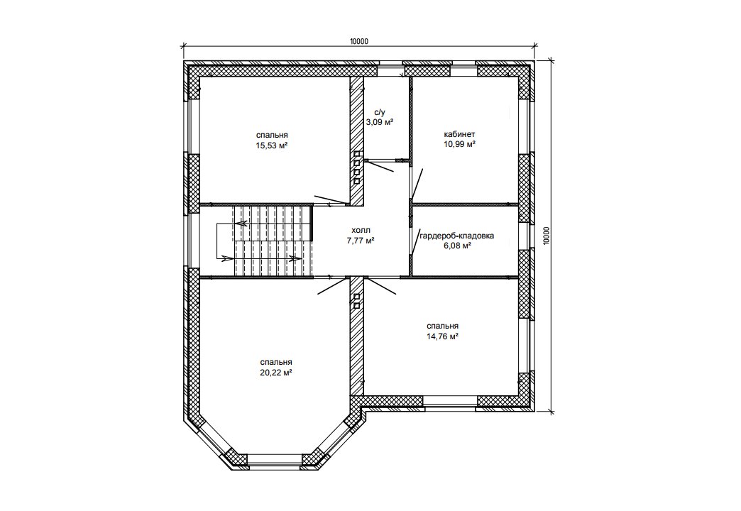
Состав помещений
| 1 этаж | тамбур, коридор-прихожая, кладовая, с/у, ванная, котельная, гостевая, кухня, гостиная, терраса-навес | |
| 2 этаж | холл, гардеробная, с/у, 3 спальни, кабинет |
Используемые материалы
| Фундамент | ленточный монолитный железобетонный на буронабивных сваях | |
| Стены цоколя | рядовая кирпичная кладка с армированием под отделку камнем | |
| Стены наружные | газобетонные блоки D500 300 мм. с облицовкой кирпичом | |
| Фасад | cтены дома отделаны облицовочным одинарным керамическим кирпичом цвета "солома" и "шоколад". Цоколь выполнен из рядового красного кирпича под отделку камнем | |
| Перекрытия | по деревянным балкам | |
| Полы 1 этажа | наливные слоеные по индивидуальному заказу | |
| Крыша | чердачная | |
| Кровля | металлочерепица |

