УСАДЬБА с подвалом
Цена коробки:
8710286 р.
Цена проекта:
87100 р.
Общая площадь:
333.9 м2
Размеры дома:
м
Этажей:
2
Гараж:
Срок строительства:
240 дней
- Комплектация
- Планировка
- Ход строительства
Состав помещений
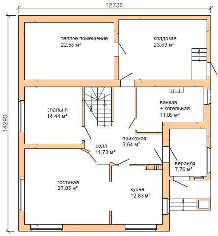
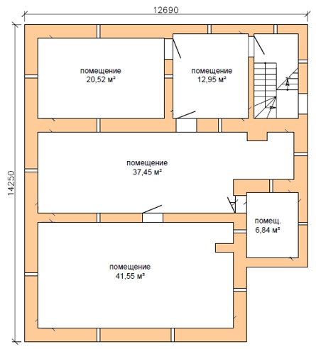
| 1 этаж | веранда, прихожая, холл, ванная + котельная (сауна), кухня, гостиная, спальня, кладовая, теплое помещение; подвал: 5 помещений | |
| 2 этаж | холл, ванная, с/у, 3 спальни |
Используемые материалы
| Фундамент | ленточный сборный из ФБС | |
| Стены цоколя | рядовая кирпичная кладка с армированием | |
| Стены наружные | газобетонные блоки, 300 мм., облицовка керамическим кирпичом. Стены веранды и кладовой - из облицовочного кирпича, 250 мм. | |
| Фасад | стены дома отделаны облицовочным полуторным керамическим кирпичом желтого цвета. Цоколь выполнен из красного кирпича, рядового. Вентканалы обшиты металлическими листами под цвет кровли | |
| Стены внутренние | газобетонные блоки, 300 мм. | |
| Перекрытия | монолитное ж/б и по деревянным балкам | |
| Крыша | мансардная | |
| Кровля | металлочерепица |


