УСАДЬБА
Цена коробки:
9111308 р.
Цена проекта:
91100 р.
Общая площадь:
212.2 м2
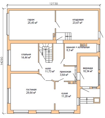
Размеры дома:
12.7 х 14.3 м
Этажей:
2
Гараж:
Срок строительства:
240 дней
- Комплектация
- Планировка
- Ход строительства
Состав помещений
| 1 этаж | веранда, прихожая, холл, ванная + котельная, кухня, гостиная, спальня, гараж, кладовая |
| 2 этаж | холл, ванная, с/у, 3 спальни |
Используемые материалы
| Фундамент | ленточный монолитный железобетонный на буронабивных сваях |
| Стены цоколя | рядовая кирпичная кладка с армированием |
| Стены наружные | газобетонные блоки, 300 мм., облицовка кирпичом |
| Фасад | стены дома отделаны облицовочным полуторным керамическим кирпичом желтого цвета. Цоколь выполнен из красного кирпича, рядового. Вентканалы обшиты листами металла под цвет кровли |
| Стены внутренние | газобетонные блоки, 300 мм. |
| Перекрытия | монолитное ж/б и по деревянным балкам |
| Крыша | мансардная |
| Кровля | гибкая черепица |

