УЮТНЫЙ
Цена коробки:
8816467 р.
Цена проекта:
88200 р.
Общая площадь:
141.8 м2
Размеры дома:
14,03 х 10,26 м
Этажей:
2
Гараж:
Срок строительства:
240 дней
- Комплектация
- Планировка
- Ход строительства
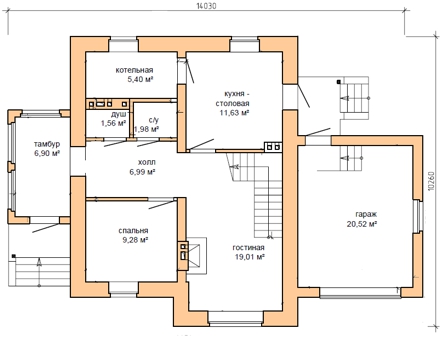
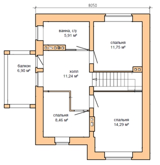
Состав помещений
| 1 этаж | тамбур, холл, с/у, душ, котельная, кухня-столовая, гостиная, спальня, гараж |
| 2 этаж | холл, балкон, ванная+с/у, 3 спальни |
Используемые материалы
| Фундамент | ленточный монолитный железобетонный на буронабивных сваях |
| Стены цоколя | рядовая кирпичная кладка с армированием |
| Стены наружные | газобетонные блоки, 200, 300, 400 мм., облицовка кирпичом. Стены тамбура - из облицовочного кирпича, 250 мм. |
| Фасад | стены дома отделаны облицовочным одинарным желтым кирпичом. Обрамления окон и ворот, участки фасада под и над окнами выполнены из облицовочного одинарного коричневого кирпича. Цоколь выполнен из красного кирпича, рядового. Кровля - коричневая металлочерепица |
| Стены внутренние | газобетонные блоки, 300 мм. |
| Перекрытия | монолитное ж/б и по деревянным балкам |
| Крыша | чердачная |
| Кровля | металлочерепица |

