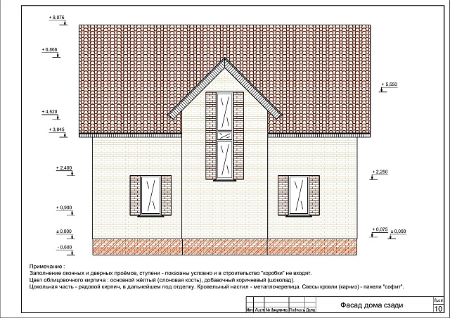
СКАЗОЧНАЯ МЕЧТА
Цена коробки:
4866037 р.
Цена проекта:
48700 р.
Общая площадь:
107 м2
Размеры дома:
10,00 х 7,01 м
Этажей:
2
Гараж:
Срок строительства:
дней


