СОЛНЕЧНЫЙ деревянный
Цена коробки:
7101606 р.
Цена проекта:
71000 р.
Общая площадь:
134 м2
Размеры дома:
11,35 х 9,25 м
Этажей:
2
Гараж:
Срок строительства:
дней
- Комплектация
- Планировка
- Ход строительства
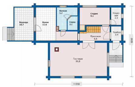
Оригинальный проект деревянного дома отличает большая светлая гостиная со вторым светом и внутренним балконом! Из кухни имеется выход на веранду, каждая комната второго этажа имеет свой балкон. В доме два санузла, ванная с окном. При необходимости, на месте второго света можно организовать две дополнительные комнаты.
Нами построено два дома по этому проекту, причём один - из лиственницы. Калькуляция на сайте посчитана для стен из сосны, при строительстве из лиственницы стоимость 1м3 материала 18000 руб/м3, из кедра - 19000 руб/м3.
Состав помещений
| 1 этаж | прихожая-гардеробная, коридор, с/у + ванная, кухня, гостиная, кабинет | |
| 2 этаж | коридор, балкон внутренний, с/у, 2 спальни, гардеробная, 2 балкона |
Используемые материалы
| Фундамент | ленточный монолитный железобетонный на буронабивных сваях | |
| Стены цоколя | рядовая кирпичная кладка с армированием | |
| Стены наружные | оцилиндрованное бревно 24 см | |
| Стены внутренние | оцилиндрованное бревно 24 см | |
| Перегородки | каркасные, звукоизолирующие, обшитые вагонкой | |
| Перекрытия | по деревянным балкам | |
| Крыша | мансардная | |
| Кровля | металлочерепица |
Состав проекта (ведомость чертежей), лист, наименование
- Общие данные
- Фасад спереди
- Фасад справа
- Фасад слева
- Фасад сзади
- Планировка 1 этажа
- Планировка 2 этажа
- Разрез A
- Разрез B
- Разрез C
- План подстропильных балок и консолей
- План кровли
- Схема заполнения проемов. Экспликация полов
- Детали 1-4
- Общие данные фундамента
- План фундамента
- Армирование фундамента, спецификация фундаментов
- Полная калькуляция работ и материалов в текущих ценах (примерно 5 листов)






