СОВРЕМЕННИК
Цена коробки:
3802003 р.
Цена проекта:
38000 р.
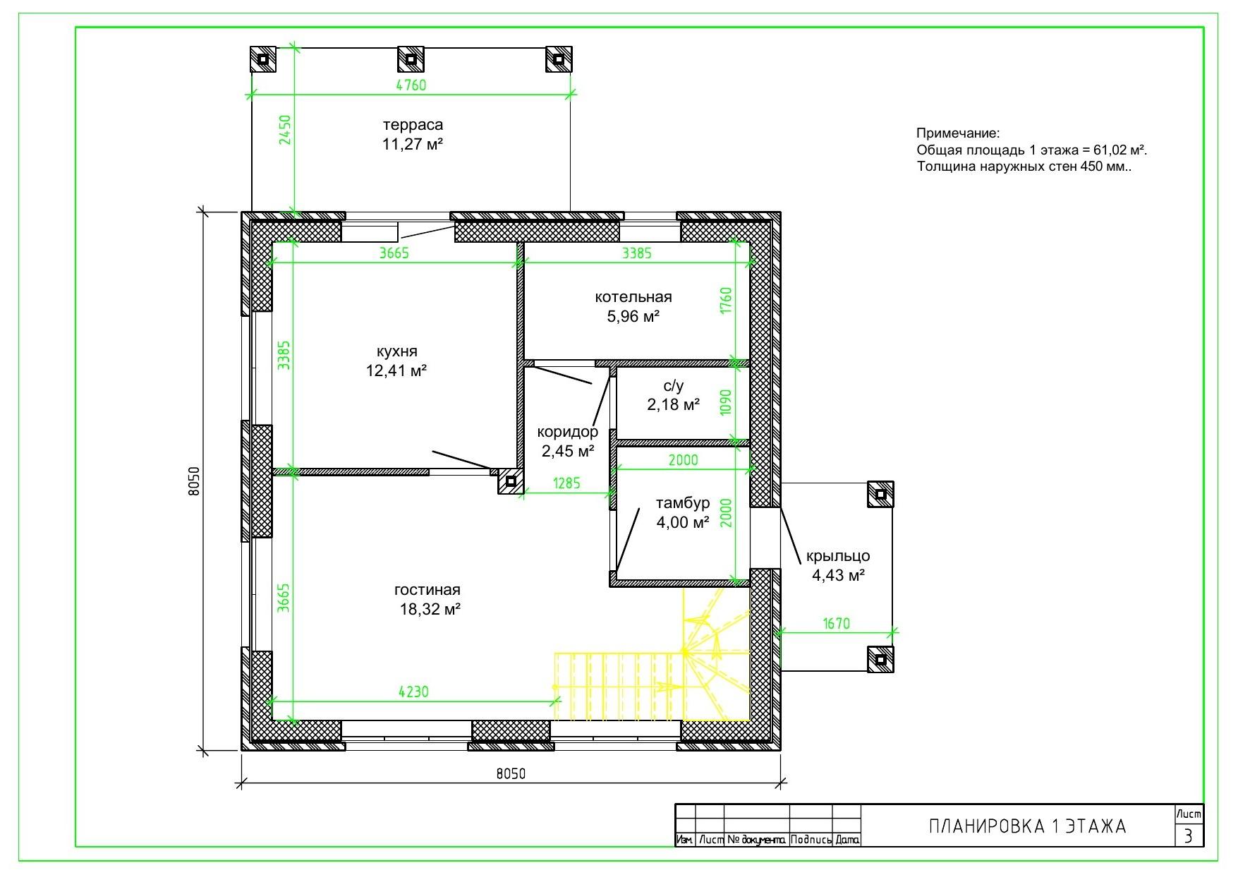
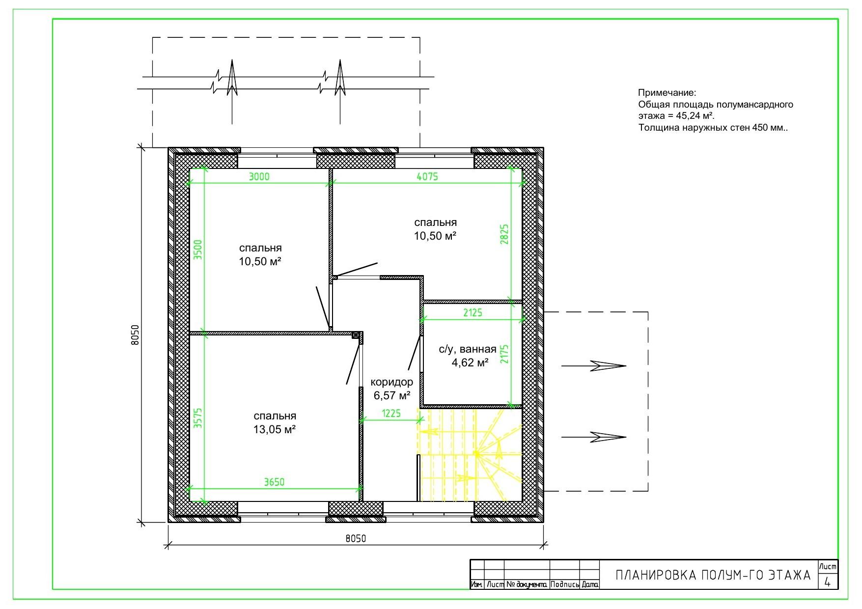
Общая площадь:
106 м2
Размеры дома:
8,05 х 8,05 м
Этажей:
2
Гараж:
Срок строительства:
дней


