СВИЯГА
Цена коробки:
10959966 р.
Цена проекта:
109600 р.
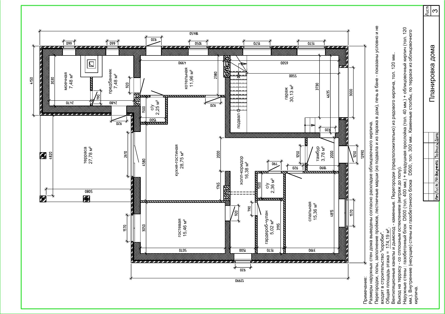
Общая площадь:
174 м2
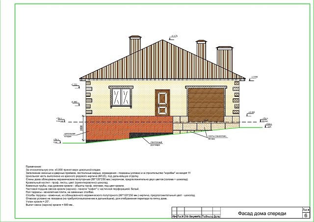
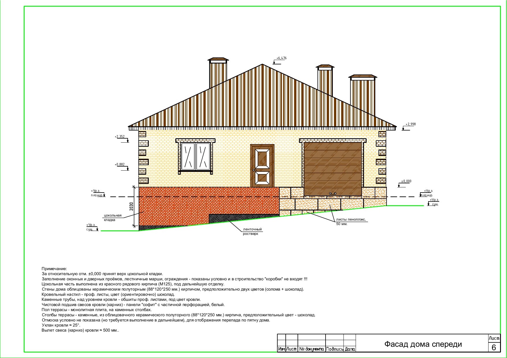
Размеры дома:
18,45 х 12,99м м
Этажей:
1
Гараж:
Срок строительства:
дней


