ТИХИЙ
Цена коробки:
6796136 р.
Цена проекта:
68000 р.
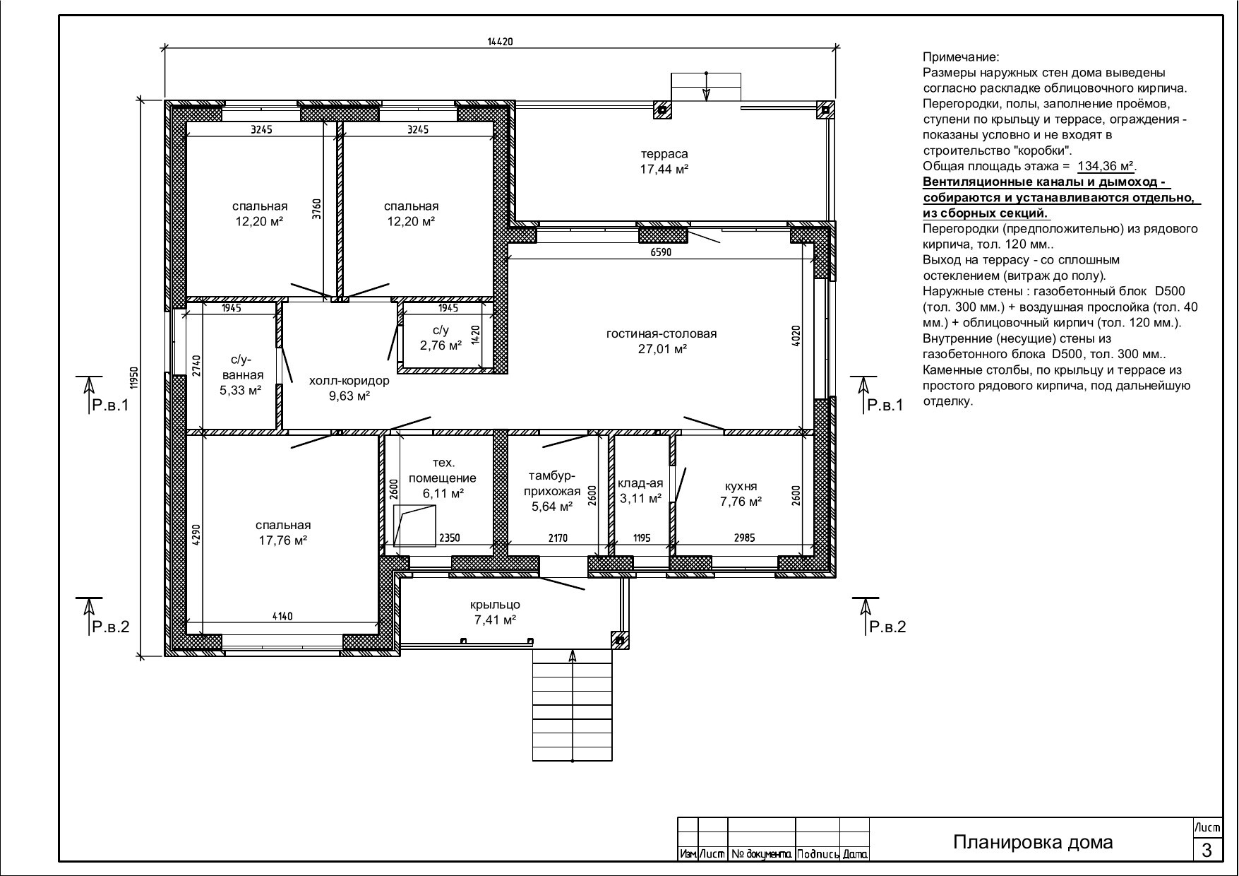
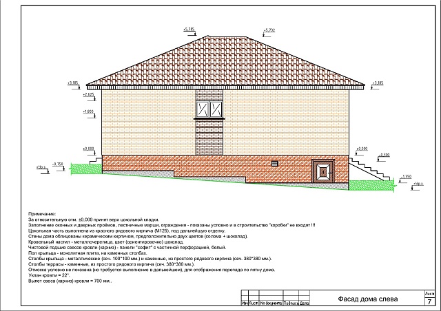
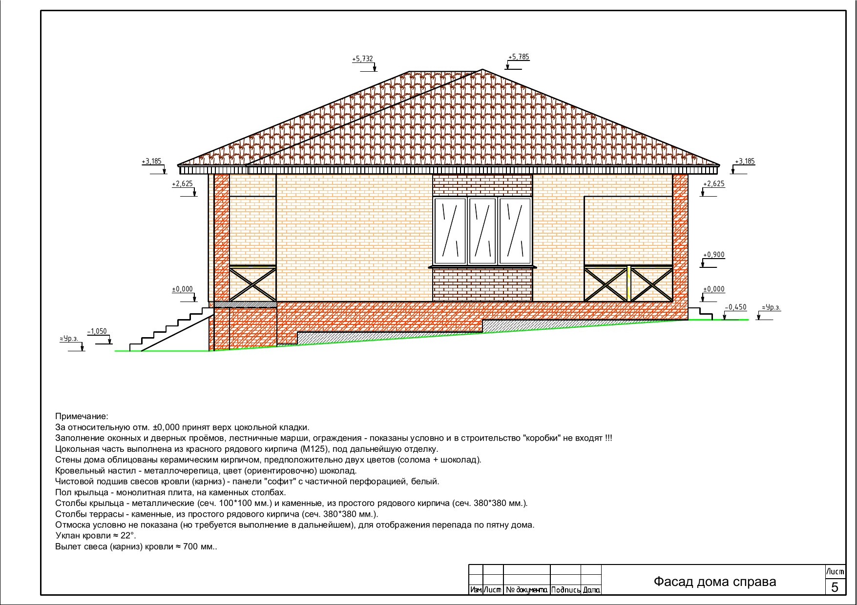
Общая площадь:
134 м2
Размеры дома:
14,42 х 11,95 м
Этажей:
1
Гараж:
Срок строительства:
дней

