ВЕНЕРА
Цена коробки:
4399040 р.
Цена проекта:
44000 р.
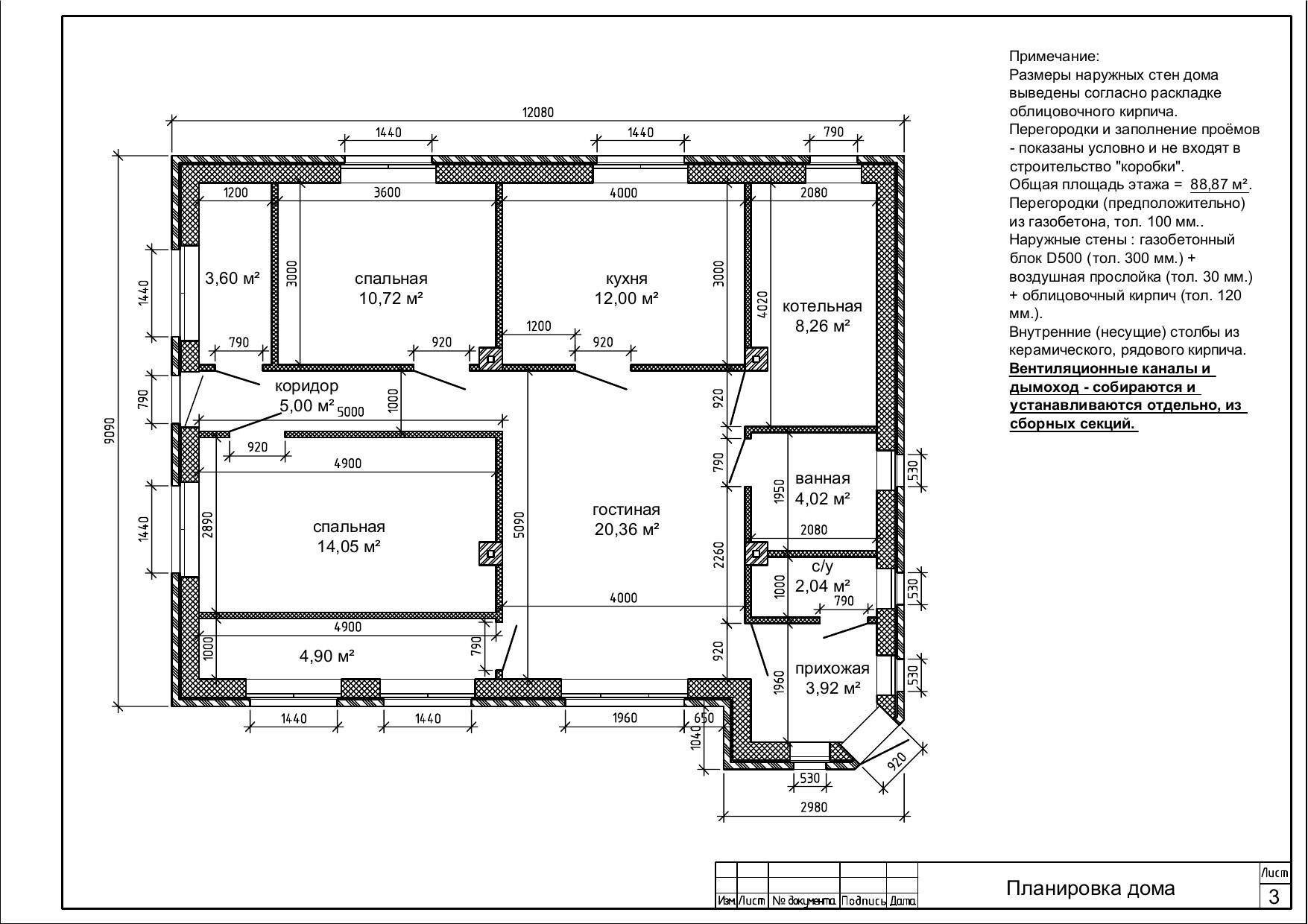
Общая площадь:
89 м2
Размеры дома:
12,08 х 9,09 м
Этажей:
1
Гараж:
Срок строительства:
дней

